Magazzino in Via Emilia Ovest a Parma
4000 m2
1 vano
€ 1.550.000
Capannone / Fondo - Magazzino a Parma
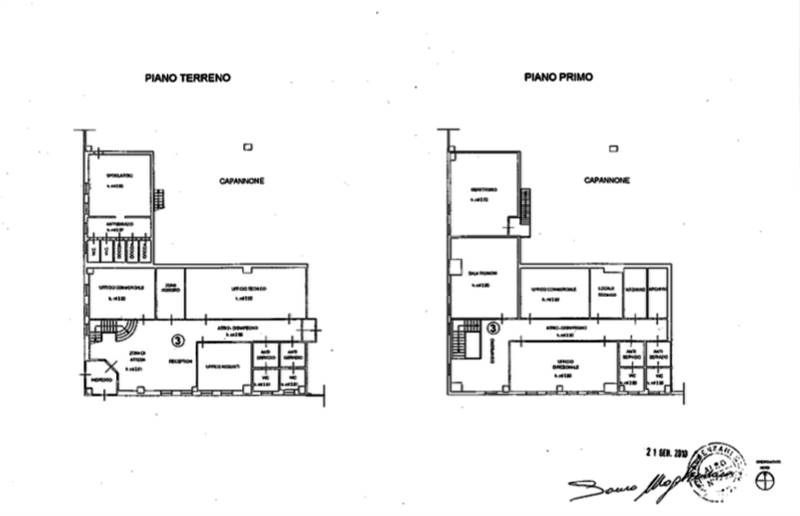
Vendesi capannone di grande metratura in Via Emilia Ovest (PR), comodo ai servizi e alla viabilità, uscita autostrada Parma Ovest.
Di metratura circa 4000 mq con 560 mq di uffici e con 2700 mq di area cortilizia.
Per ulteriori informazioni contattare ANTECASA 329.6425816 www.consorzioparma.it
Dove si trova
44.8067710.3004
Informazioni generali
ANCP04
4000 m2
1 locali
€ 1.550.000
Vendita
Magazzino
Parma
Via Emilia Ovest
Medio Signorile
23/01/2023
Accessori
Abitabile
si
Efficienza energetica
D
D
Planimetria
Richiesta informazioni all'agenzia
Richiedi informazioni all'agenzia
Ante Casa Immobiliare di Salvatore Rosato
Via Verdi 27
43121
Parma
(PR)
P.IVA: 02272650348
