Attico in Via Marconi a Stradella
Attico in Vendita di 120 mq a Stradella
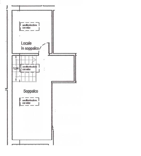
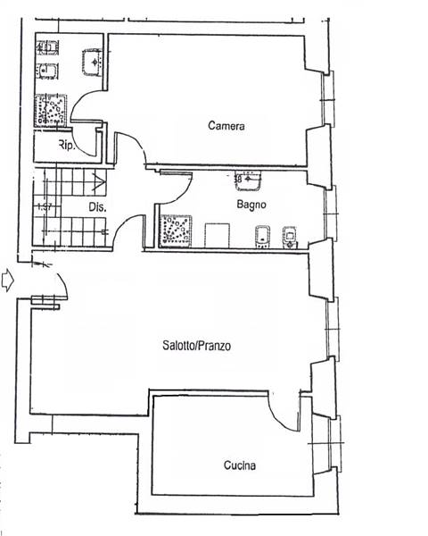
Stradella (PV) via Marconi VENDITAResidenza Arnaboldi, una reinterpretazione in chiave contemporanea del concetto di edificio residenziale di pregio, al fine di coniugare e valorizzare le qualità e la bellezza architettonica e storica dellâimmobile con la funzionalità e la piacevolezza degli spazi da abitare. Ogni unità abitativa è caratterizzata da unâottima esposizione e luminosità ed è dotata delle migliori finiture e realizzata con le più moderne tecniche costruttive. APPARTAMENTO SU DUE LIVELLI composto da soggiorno, cucina abitabile, camera da letto con bagno privato e bagno padronale. Al piano superiore 2 camere da letto con cabina armadio. CLASSE ENERGETICA B Lâimpianto di riscaldamento è autonomo con serpentine a pavimento di nuova generazione a bassa temperatura, i pannelli solari permettono un sistema di integrazione solare per la produzione di acqua calda sanitaria. Isolamenti termici e acustici realizzati con specifici pannelli ad alta densità da 10 cm inseriti a scomparsa nelle murature, con appositi tappetini fonoassorbenti stesi sotto i pavimenti, con il rivestimento delle linee di scarico delle acque, con infissi in legno dotati di doppi vetri con camera dâaria a basso emissivo che garantiscono luminosità agli ambienti ma non permettono ai raggi solari di penetrare nellâabitazione mantenendola fresca nei periodi più caldi, tutte tecnologie costruttive che rendono la Residenza Arnaboldi ecocompatibile e permettono un notevole risparmio sui costi di gestione.
Dove si trova
Informazioni generali
Accessori
Efficienza energetica
Richiesta informazioni all'agenzia
Richiedi informazioni all'agenzia
