Bilocale in Via Bovio a Stradella
Appartamento in Vendita di 72 mq a Stradella
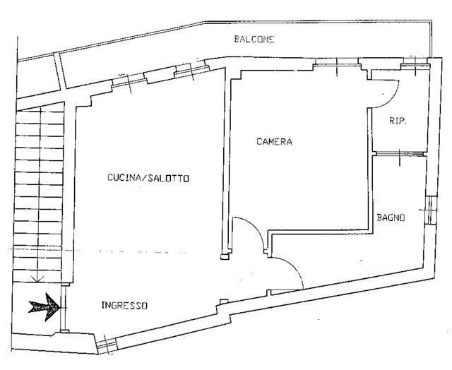
Stradella (PV) Via Bovio VENDITA In cotesto residenziale formato da sole due unità abitative senza spese condominiali con ingresso indipendente . Sviluppa una superficie commerciale di 72 mq e composto internamente da soggiorno con cucina a vista con balcone, disimpegno , camera da letto matrimoniale , cabina armadio e bagno dotato di finestra . Appartamento dotato di porta blindata, riscaldamento autonomo, infissi in legno con doppi vetri , zanzariere . Buonissime condizioni interne ed ottima posizione in zona tranquilla ma a due passi dal centro cittadino.Completa la proprietà box auto nel cortile interno. Classe energetica F kwh/mq2
Dove si trova
Informazioni generali
Accessori
Efficienza energetica
Richiesta informazioni all'agenzia
Richiedi informazioni all'agenzia
