Casa singola in Frazione Monteveneroso a Canneto Pavese
95 m2
3 vani
2 camere
1 bagno
€ 40.000
Casa singola in Vendita di 95 mq a Canneto Pavese
Canneto Pavese Fraz. Monteveneroso (PV) VENDITA Inserita in tranquilla zona residenziale, a pochi minuti dal centro di Stradella, proponiamo in vendita casa semindipendente disposta su due livelli oltre piano sottotetto e composta da ingresso, soggiorno, cucina , disimpegno, due camere matrimoniali e bagno. Completano la proprietà rustico e giardinetto recintato. Lâimmobile è dotato di riscaldamento autonomo .Classe Energetica G 317,17 kwh/mq2
Dove si trova
45.040799.282716
Informazioni generali
746
95 m2
3 locali
€ 40.000
Vendita
Casa singola
Canneto Pavese
frazione monteveneroso
Libero
04/10/2023
Accessori
1
2
Autonomo
Semi abitabile
si
Efficienza energetica
G
G
317,17 kwh/m2 anno
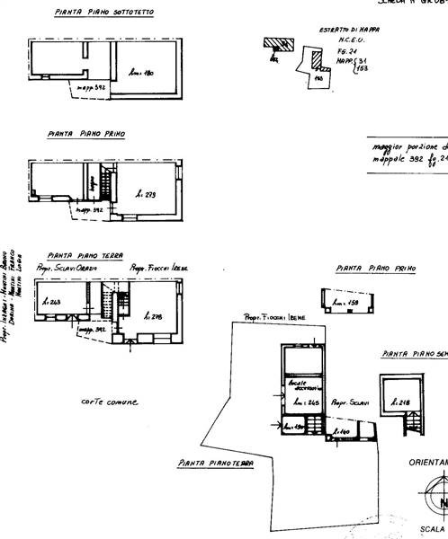
Planimetria
Richiesta informazioni all'agenzia
Richiedi informazioni all'agenzia
Immobiliare Stradella di Delmonte Mathia Alex
PIAZZA VITTORIO VENETO,3
27049
Stradella
(PV)
P.IVA: 06996050966
