Appartamento indipendente abitabile in zona San Litardo a Citta'Della pieve
114 m2
5 vani
3 camere
2 bagni
€ 85.000
Vendita Appartamento indipendente, Abitabile, in zona San Litardo, CITTA' DELLA PIEVE
Abitazione inserita in un piccolo Borgo in posizione collinare e panoramica con ottima esposizione a circa 3 km dal centro di Città della Pieve;
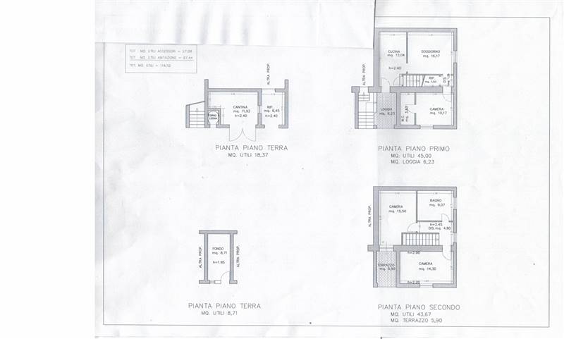
L'immobile si sviluppa su due livelli con suddivisione riportata nella planimetria allegata. Completano la proprietà: una spaziosa cantina, due fondi e un terreno antistante di circa 300 mq. con capacità edificatoria di 70 mq.
Sup. abitazione mq 87,44
Sup. accessori mq 27,08
Sup. Tot mq 114.52
Dove si trova
42.976611.98867
Informazioni generali
443745
114 m2
5 locali
€ 85.000
Vendita
Appartamento indipendente
Citta'Della pieve
San Litardo
Singolo
Libero
19/12/2025
Accessori
2
3
1 di 2, senza ascensore
Autonomo
Abitabile
Abitabile
300 mq
si
si
si
Efficienza energetica
G
G
Richiesta informazioni all'agenzia
Richiedi informazioni all'agenzia
CARDINALI SERVIZI IMMOBILIARI
VIA A.GRAMSCI 151/D ELLERA (PG)
06074
Corciano
(PG)
P.IVA: 02642660548
