Villa abitabile a Castiglione del Lago
vendita Villa o villino Castiglione del Lago
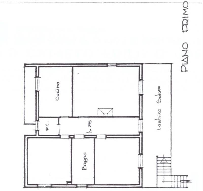
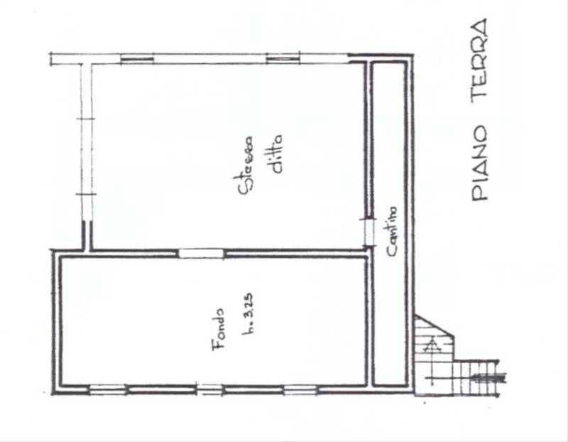
Ubicata in una posizione incantevole, affacciata sul Lago Trasimeno, si trova la casa singola disposta su due livelli. Al piano terra rialzato troviamo l'appartamento di circa 140 mq composto da lastricato solare di circa 11 mq. , ingresso, ampio salone con camino, cucina abitabile con balcone,due camere matrimoniali e due bagni. Al piano seminterrato ampio locale di circa 110 mq attualmente adibito a garage. Vi è la possibilità di ricavare un ulteriore appartamento. Completa la proprietà parco alberato di circa 1000 mq. con pozzo, doppio ingresso. L'immobile necessita di ristrutturazione. Possibilità di edificare ulteriori mc 300.
