Appartamento in zona Soria a Pesaro
320 m2
10 vani
10 camere
2 bagni
box
€ 1.350.000
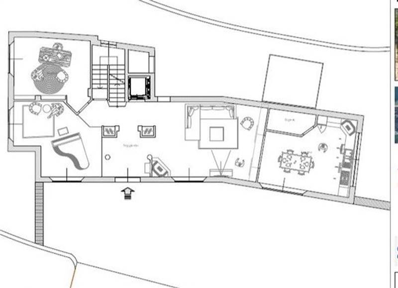
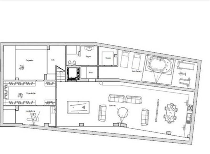
Vendiamo Villa al grezzo sviluppata su due piani fuori terra oltre al piani interrato, posizione fantastica con splendida vista sul mare di Vallugola parco di mq. 3.000, piano interrato ad uso taverna, una zona giorno di 110 mq con vista sul mare, una zona notte al piano primo, con travi in legno a vista, Villa allo stato grezzo avanzato, disponiamo di progetto definitivo con le piante di ogni piano e la loro destinazione, la splendida posizione sul mare fanno di questo fabbricato un luogo dove passare le proprie vacanze fuori dalla grande folla.
Dove si trova
43.918412.89586
Informazioni generali
giuseppe
320 m2
10 locali
€ 1.350.000
Vendita
Appartamento
Pesaro
Soria
2026
14/02/2026
Accessori
2
10
Richiesta informazioni all'agenzia
Richiedi informazioni all'agenzia
Immobiliare albertini
viale 2 Giugno 56 Cervia
Cervia
(RA)
P.IVA: 00326010394
