Quadrilocale in zona Pantano a Pesaro
120 m2
4 vani
2 camere
2 bagni
€ 190.000
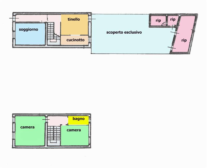
CASA A SCHIERA MQ 120 + SCOPERTO MQ 60 + CAPANNO MQ 20
PESARO PANTANO BASSA A POCHISSIMA DISTANZA DAL CENTRO STORICO, STAZIONE FERROVIARIA ED OSPEDALE, IN AREA SERVITA DI NEGOZI, SERVIZI E PIOSTA CICLABILE, PROPONIAMO IN VENDITA CASA A SCHIERA CIELO TERRA, CON INGRESSO ED UTENZE INDIPENDENTI, SU DUE LIVELLI ED IN CONDIZIONI ORIGINARIE, DI MQ 120. COMPLETA LA PROPRIETA' UNO SCOPERTO SUL RETRO DI MQ 61 ED UN CAPANNO ACCESSORIO DI MQ 26. DISPONIBILE SUBITO. CENTRALISSIMA POSIZIONE.
Dove si trova
43.8943712.91081
Informazioni generali
5026
120 m2
4 locali
€ 190.000
Vendita
Appartamento
Pesaro
Pantano
Signorile
1965
16/10/2018
Accessori
2
2
Terra, senza ascensore
Autonomo
Abitabile
si
si
si
Efficienza energetica
G
G
114 kwh/m2 anno
Richiesta informazioni all'agenzia
Richiedi informazioni all'agenzia
