Trilocale a Pescara
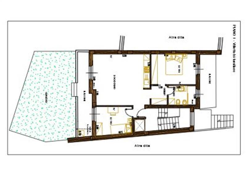
PESCARA zona San Silvestro Spiaggia - Nuova costruzione - Affittasi appartamento NON ARREDATO posto al piano primo di villetta bifamiliare.L'abitazione di mq 70 ca al suo interno si compone di ingresso, soggiorno con angolo cottura, disimpegno, camera da letto, cameretta, bagno, 2 balconi e giardino privato.No spese condominiali. Impianti autonomi e a norma secondo le leggi vigenti. Riscaldamento a pavimento con caldaia a gas e impianto solare termico (serbatoio acqua calda sul tetto). Infissi in PVC con vetro a taglio termico, tapparelle elettriche, videocitofono e portoncino blindato. Pavimenti in monocottura. Predisposizione impianto di condizionamento. Il contratto di locazione sarà assegnato solo a conduttore referenziato con documentazione lavorativa dimostrabile. Disponibile da inizio Marzo 26. Rif. AF 202.Maggiori informazioni si possono chiedere all'agenzia immobiliare Pro. V. Im.
