Tenuta-Complesso in Casa del Moletta Snc a Travo
Rif. 277TV, val Trebbia, Travo, a poca distanza dalla Strada Statale 45, in Località Casa Del Moletta, vendiamo casale con due unità abitative separate, una delle quali al momento utilizzata come B&B. Accorpati ai fabbricati troviamo 30.000 mq di terreno in parte destinato a seminativo, in parte a bosco. I due immobili si prestano sia per attività ricettive che come dimora per due o più nuclei famigliari. Tutto il complesso si trova in posizione alta e panoramica, a mt 440 s.l.m. offrendo una veduta a 360 gradi sulla Val Trebbia con vista fiume. L'accesso è tramite strada in parte sterrata ma ben percorribile.
I due immobili, ristrutturati di recente e subito abitabili, sono così suddivisi:
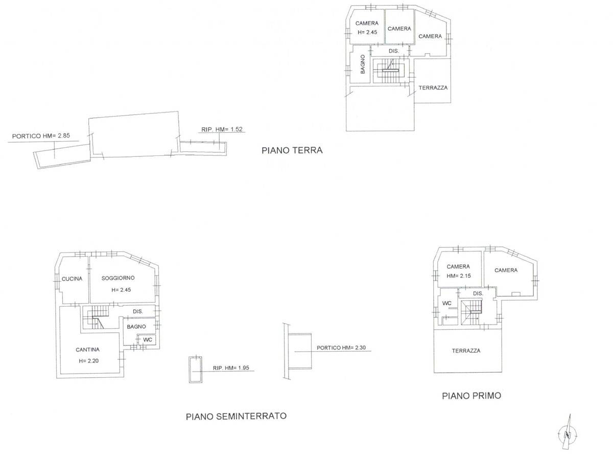
La prima abitazione con pietre a vista di mq totali 269, è stata parzialmente ristrutturata nel 2014 con: rifacimento terrazzi, impianto elettrico e di riscaldamento, quest'ultimo è alimentato da una caldaia a legna (anch'essa installata in fase di ristrutturazione) posizionata in apposito locale dedicato, al quale si accede tramite regolare porta REI 120. Internamente l'immobile è così suddiviso: piano terra con ingresso diretto nel soggiorno con stufa a legna in ghisa, oltre ai classici caloriferi, cucina abitabile, un primo bagno con doccia e lavanderia ed un disimpegno che conduce all'ampia e comoda cantina. Piano primo con tre ampie camere da letto, un bagno ed una panoramica terrazza. Sul lato strada è presente un garage, nel quale è stato ricavato uno studio.
Al piano secondo troviamo due ampie camere da letto, un bagno ed una seconda panoramica terrazza. Tutti i serramenti sono in legno con vetri doppi.
La seconda abitazione di mq totali 218, è stata completamente ristrutturata nel 2018 con installazione di caldaia a pellet in apposito locale dedicato, rifacimento impianti, bagni e altro. Tale struttura è stata progettata anche per ospitare un'attività di AIRB&B tutt'ora attiva e ben avviata, conosciuta con il nome di La Finestra sul Fiume, e così suddivisa:
Piano seminterrato: ampia e panoramica terrazza che si sviluppa lungo tutta la facciata del fabbricato, dove si affacciano due ampie camere matrimoniali, ognuna con proprio bagno esclusivo e ingresso indipendente, il locale caldaia ed una cantina laboratorio piastrellato.
Piano terra, in cui è stato ricavato un ampio appartamento con balcone panoramico che si affaccia sulla Val Trebbia, con proprio ingresso indipendente suddiviso in zona soggiorno con cucina open space, un bagno di servizio, un'ampia e comoda camera matrimoniale con bagno, una piccola cucina che si affaccia su una ampia terrazza.
Piano primo: interamente adibito a soffitta, molto luminosa, sono stati realizzati numerosi velux sul tetto ed un bagno. I serramenti sono in PVC con doppio vetro.
I due fabbricati sono completamente indipendenti a livello di impianti, l'unica utenza in comune è l'acqua, divisibile con l'installazione di altro contatore.
Esternamente vi è un ampio cortile comune pavimentato in beole dove si possono parcheggiare diverse auto.
A fianco dei fabbricati, a corpo unico, c'è un prato pianeggiante che può essere utilizzato come garden e dove si può realizzare piscina, gazebo o altro.
La parte boschiva presenta zone interessanti per attività di meditazione e passeggiate.
Distanze: da Travo km 3, da Piacenza Km 35.
Per informazioni: Immobiliare 7 VALLI, Piazza Primo Maggio 17, Ponte dell'Olio PC. Previo appuntamento.
Dove si trova
Informazioni generali
Accessori
Efficienza energetica
Richiesta informazioni all'agenzia
Richiedi informazioni all'agenzia
