Terreno edificabile in zona Rivalta a Gazzola
Rif. 280GZ Val Trebbia, Rivalta di Gazzola, in recente zona residenziale proponiamo lotto edificabile di mq 461 accorpato a un'area verde di circa 700 mq per una superficie totale di 1160 mq. Ingresso indipendente, proprietà recintabile.
Sulla parte di 700 mq troviamo un portico accatastato in Categoria C2, locale di deposito e magazzino, che può essere trasformato in civile abitazione oppure utilizzato come Box, ricovero attrezzi, altro.
La parte edificabile, di 461 mq, ha un indice Uf di 0,40 mq/mq con un'altezza massima di mt 8.50, in totale si può costruire una casa di mq 184.
Nella mappa pubblicata, il perimetro totale della proprietà è in colore rosso, in colore arancione è delimitato invece il perimetro dell'area edificabile.
Il sito è di facile accesso, dista soli 30 metri dalla strada principale asfaltata.
Utenze: energia elettrica, acquedotto e gas metano distano solo pochi metri dalla proprietà.
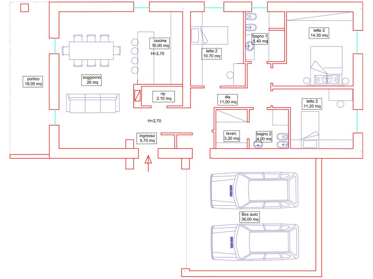
A richiesta: in collaborazione con una accreditata ditta costruttrice Piacentina, possiamo consegnare una villa di nuova costruzione, su unico piano o su due livelli, la struttura e le finiture saranno effettuate secondo le migliori regole dettate dall'arte muraria. Il progetto esecutivo e la realizzazione del fabbricato, nonché la scelta dei materiali, sono stati valutati nel rispetto delle leggi vigenti in materia di risparmio energetico e requisiti acustici passivi nei fabbricati. Progetto e capitolato, personalizzabili, visibili presso il nostro ufficio.
Distanze: da Piacenza km 12, da Gazzola km 3, da Croara Country Club km 3.
Per informazioni Immobiliare 7 VALLI, Piazza Primo Maggio 17, Ponte dell'Olio PC.
Si riceve previo appuntamento.
Dove si trova
Informazioni generali
Richiesta informazioni all'agenzia
Richiedi informazioni all'agenzia
