Trilocale in Via Cavour a San Giorgio Piacentino
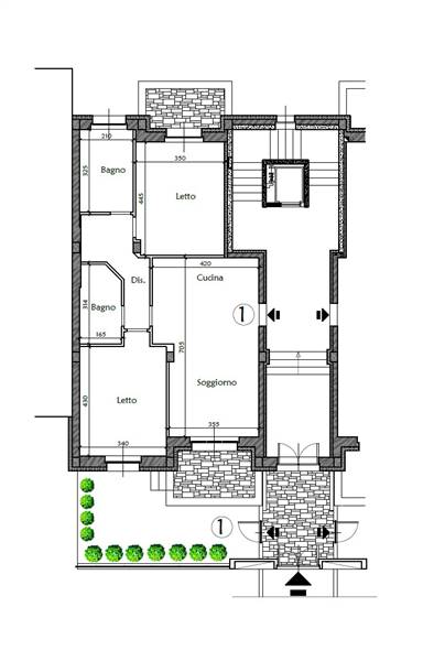
SAN GIORGIO PIACENTINO: Recupero e riqualificazione energetica a nuovo di signorile stabile con ascensore. Appartamento di nuova generazione e tecnologicamente all'avanguardia SENZA UTILIZZO DI GAS, al PIANO TERRA di 96 mq composto da ampio soggiorno con angolo cottura e accesso al terrazzo e giardino privato, disimpegno, 2 camere da letto e doppi servizi.
Classe A - Impianto fotovoltaico pari a 2 kW.
Possibilità di scelta delle finiture interne. Consegna FINE 2025.
Disponibile anche versione con 3 LETTO ad Euro 225.000.
Possibilità BOX SINGOLO ad Euro 15.000 e BOX DOPPIO ad Euro 25.000.
Possibilità CANTINA ad Euro 5.000.
*INFORMATIVA PRIVACY* Per tutelare la privacy dei nostri clienti, vi informiamo che, in alcuni casi, L'INDIRIZZO INDICATO DELL'IMMOBILE E' SOLITAMENTE APPROSSIMATIVO. Maggiori dettagli verranno SEMPRE forniti SOLO dopo contatto telefonico. Si riceve SEMPRE SOLO ESCLUSIVAMENTE con appuntamento da contatto telefonico o mail. dal Lunedì al Venerdì dalle 9.00 alle 12.30 e dalle 14.00 alle 18.00 Sabato mattina SOLO PER APPUNTAMENTI - Domenica CHIUSO TEL. 0523.49.08.18 MAIL: info@soluzionecasapc.it; MAIL: affitti@soluzionecasapc.it; SOLUZIONECASA Piacenza - Via Monte Penice 18 - 29121 Piacenza
Dove si trova
Informazioni generali
Accessori
Efficienza energetica
Planimetrie
Richiesta informazioni all'agenzia
Richiedi informazioni all'agenzia
