Villa in Via Alcide de Gasperi a Vigolzone
Rif. 282 VZ, Vigolzone Paese, in un tranquillo e ben curato quartiere residenziale proponiamo Casa Indipendente con giardino e ampio box auto staccato dal corpo di fabbrica principale.
Anno di costruzione 1980 circa.
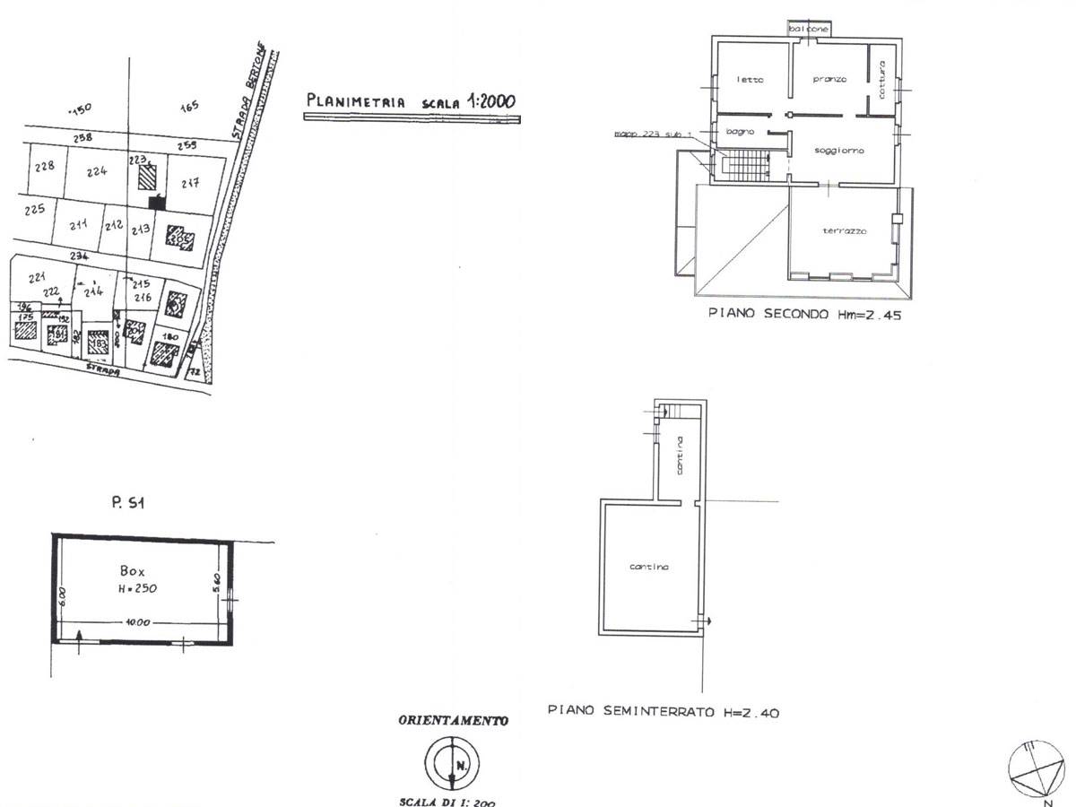
La casa è disposta su tre piani fuori terra, più seminterrato ed è così suddivisa:
Piano seminterrato interamente adibito a cantina.
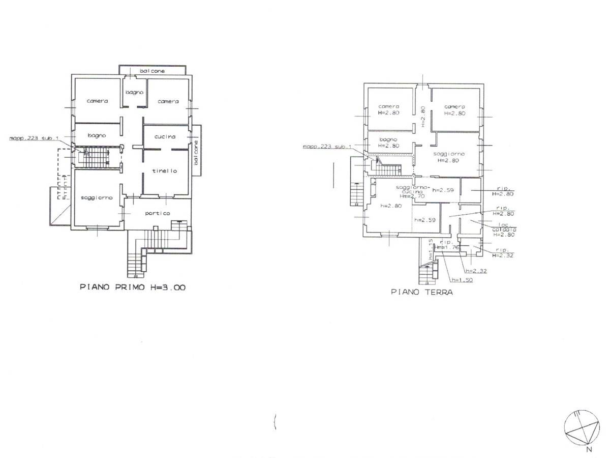
Piano terra, in cui si sviluppa un primo appartamento completamente ristrutturato nel 1988, con: ampio soggiorno con camino a legna che attualmente è stato dismesso per installare una stufa a pellet, cucina, bagno e due ampie camere matrimoniali. Da un disimpegno si ha accesso al locale caldaia e alla lavanderia.
Piano primo in cui si sviluppa un secondo appartamento con: ingresso, ampio soggiorno, sala da pranzo, cucina, due ampie camere da letto, doppi servizi e doppi balconi. L'ingresso è sia esterno tramite ampio porticato che affaccia sul giardino, sia tramite scala interna.
Piano secondo in cui è stato ricavato un terzo appartamento con: luminoso soggiorno con stufa a legna e accesso ad un ampio e comodo terrazzo, sala da pranzo con angolo cottura, una camera matrimoniale ed un bagno.
Le porte interne e la scala sono tutte in legno di noce.
Il riscaldamento è tramite radiatori e caldaie. Queste ultime si trovano installate in apposito locale tecnico al piano terra. Le caldaie sono due: una per il piano terra e la mansarda ed una per il piano primo, tutte dotate di regolare libretto.
Il tetto è stato controllato e ripassato circa 10 anni fa, con sostituzione di tutte le grondaie, non presenta coibentazione. E' stata inoltre rifatta la tinteggiatura esterna.
In generale la casa è ben curata e mantenuta.
I serramenti sono in legno con doppio vetro, in ottime condizioni manutentive.
Esternamente, sui 4 lati, si sviluppa il giardino, piantumato e ben tenuto. Vi è inoltre un forno a legna.
L'ampio garage, di mq totali 67, si sviluppa in un corpo di fabbrica staccato da quello principale.
L'immobile si trova inserito in un tranquillo e ben curato quartiere residenziale, a poca distanza dal centro paese, in cui si possono trovare tutti i servizi principali.
Per informazioni: Immobiliare 7 VALLI, tel.
Piazza Primo Maggio 4, Ponte dell'Olio PC. Si riceve previo appuntamento.
Dove si trova
Informazioni generali
Accessori
Efficienza energetica
Richiesta informazioni all'agenzia
Richiedi informazioni all'agenzia
