Azienda agricola in ottime condizioni a San Miniato
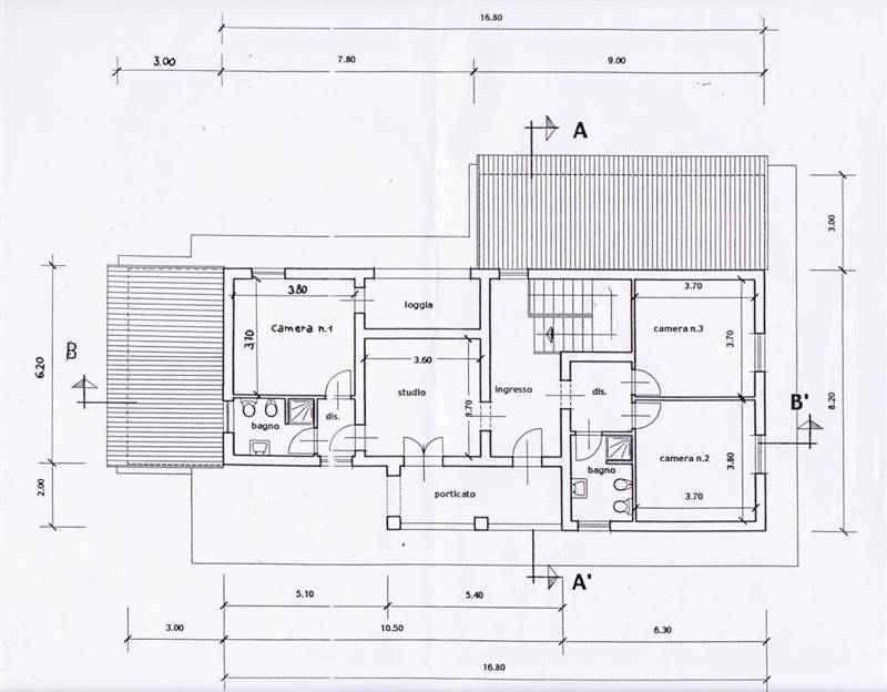
AZIENDA AGRICOLA IN VENDITA A SAN MINIATO (PI) - Azienda Agricola Biologica con 9 ettari di terreno e colonica indipendente di nuova costruzione. L'immobile è strutturato su due livelli e libero su quattro lati, misura circa mq.270; attualmente è al grezzo ed i progetti prevedono la seguente suddivisione: piano terra con loggiato, ingresso, doppio soggiorno con porticato, cucina, sala da pranzo con porticato, bagno, lavanderia, locale tecnico; piano primo con disimpegno, camera padronale con bagno ed ampio loggiato con bellissima vista panoramica, tre camere, bagno a servizio del piano. La colonica può essere suddivisa diversamente rispetto alla disposizione di progetto, può anche essere adibita ad attività turistico-ricettiva con la realizzazione di 4 appartamenti indipendenti per uso agriturismo (di cui uno come abitazione dell'imprenditore agricolo). Terreno di 9 ettari circa con oliveto (400 piante), seminativo, frutteto, noceto e 2 ettari di tartufaia. Euro 345.000 bor703
Dove si trova
Informazioni generali
Richiesta informazioni all'agenzia
Richiedi informazioni all'agenzia
