Bilocale in nuova costruzione a Casciana Terme Lari
77 m2
2 vani
2 camere
box
€ 200.000
vendita Appartamento Lari
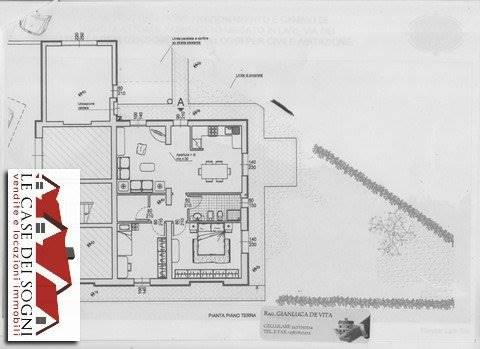
Casciana Terme Lari: nel paese di lari con vista castello disponiamo di appartamento nuova costruzione in picccolo complesso residenziale al piano terra con ingresso indipendente,garage e giardino privato su due lati. Possibili molteplici personalizzazioni interni ed esterni. Appartamento composto da sala luminosa con accesso a giardinetto,cucina ampia,ripostiglio,disimpegno camera e cameretta. speciali bonus ottenibili per detrazioni fiscali. Riferimento 925P
Informazioni generali
925T_1
77 m2
2 locali
€ 200.000
Vendita
Appartamento
Casciana Terme Lari
Libero
2010
24/01/2018
Accessori
2
Terra, senza ascensore
Autonomo
Nuova costruzione
Abitabile
si
Efficienza energetica
B
B
100 kwh/m2 anno
Richiesta informazioni all'agenzia
Richiedi informazioni all'agenzia
LE CASE DEI SOGNI
Via delle Casine, 129 - PERIGNANO
56035
Lari
(PI)
P.IVA: 02042130506
