Terreno edificabile in Via della Repubblica in zona Orentano a Castelfranco di Sotto
Terreno edificabile in Vendita di 650 mq a Castelfranco di Sotto
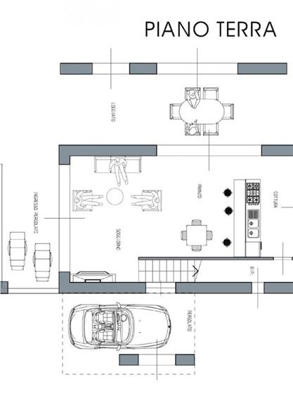
NOSTRA ESCLUSIVA Terreno edificabile di circa 650 mq con progetto approvato sito in una zona molto tranquilla e non trafficata allâinterno della frazione di Orentano nel comune di Castelfranco di Sotto che prevede la costruzione di un nuovo edificio unifamiliare.Il lotto è in una zona residenziale vicino a tutti i servizi di uso quotidiano e al centro del paese.Lâintervento prevede lâedificazione di un fabbricato a fini residenziali disposto su due livelli fuori terra di circa 120 mq che può essere modificato secondo le esigenze del futuro Acquirente anche nella superficie da costruire fino ad un massimo di 210 mq, a richiesta è possibile acquistare ulteriore terreno con prezzo da stabilire al momento.NEL PREZZO DI VENDITA Eâ COMPRESO IL COSTO DEL PROGETTO APPROVATO.IL PREZZO Eâ TRATTABILE IN AGENZIA.
Dove si trova
Informazioni generali
Richiesta informazioni all'agenzia
Richiedi informazioni all'agenzia
