Trilocale in Via Stradiola in zona San Lorenzo a Pagnatico a Cascina
Appartamento in Vendita di 77 mq a Cascina
Vendita appartamenti in contesto residenziale S.LORENZO a PAGNATICO
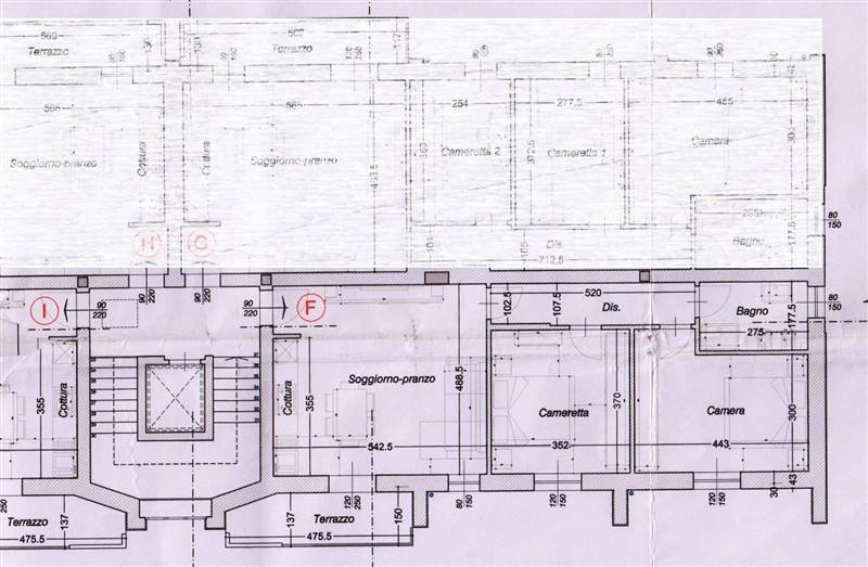
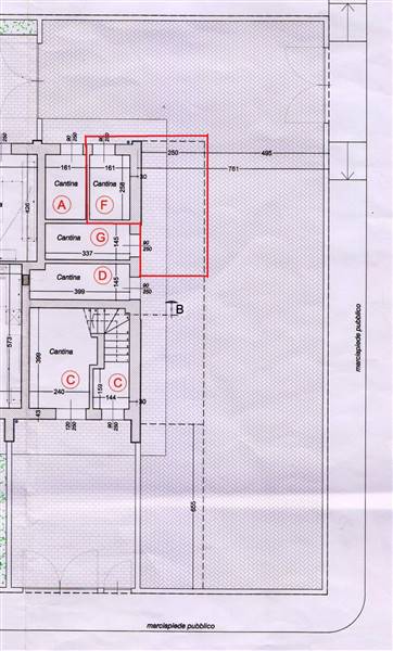
Rif pi00424 vendita appartamenti in contesto residenziale S.Lorenzo a Pagnatico A 1 km dai principali servizi e mezzi di comunicazione, in contesto residenziale con ampi spazi a verde e parcheggio, fabbricato di NUOVA costruzione in consegna a giugno 2020 realizzato con le più moderne tecnologie costruttive, luminoso appartamento al piano 2° ed ultimo servito da ascensore, composto da ingresso nel soggiorno-pranzo con lato cottura e balcone, disimpegno reparto notte, camera matrimoniale, camera singola e bagno. Corredato da comoda cantina uso sgombero con acqua e corrente elettrica oltre ad un ampio posto auto esclusivo all'interno dell'area condominiale completamente recintata.
A scelta dell'acquirente le rifiniture di pregio incluse nel prezzo (pavimenti, rivestimenti, bagni, porte interne, ecc.) con ampia possibilità di personalizzare. Classe energetica A3. con riscaldamento al pavimento.
Trattandosi di fabbricato in corso di costruzione le immagini pubblicate sono relative ad identico appartamento posto nel fabbricato adiacente già ultimato.
