Villa in Via Provinciale Camminata a Casale Marittimo
Villa a Casale Marittimo
P2607 - Casale Marittimo (Pisa) - Toscana - IN NOSTRA ESCLUSIVA - A 4 chilometri dal centro storico di Casale Marittimo, in meravigliosa posizione con vista sulle colline circostanti, il Borgo e il mare, vendesi bella villa con fattura che riprende l‘aspetto del casale tipico toscano in pietra a faccia vista, costruita nel 2011 con materiali di pregio e impianti di ultima generazione, realizzando ambienti spaziosi, doppi volumi e luminosi, il tutto circondato da terreno di circa 22.000 mq. La villa si compone su due livelli, al piano terra l'abitazione di mq 189 ed il piano interrato dotata di grandi spazzi per complessivi di mq 289.
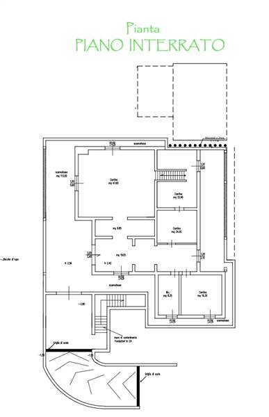
La villa è composta al piano terra dalla civile abitazione con accesso dal portico di mq 27, grande atrio d’entrata (nel quale una parte è realizzabile una camera già predisposta all'epoca della costruzione), ampio soggiorno a doppio volume con soppalco a vista di mq 10, cucina attrezzata con arredi realizzati su misura, da entrambi gli ambienti si accede al pergolato di mq 40 da cui si gode della vista sul borgo di Casale Marittimo e il mare, la dispensa il bagno di servizio e grande camera padronale con cabina armadio, due vani separati uno con bagno privato e l’altro con doccia e locale tecnico, sempre al piano terra in aderenza, troviamo una dependance indipendente per gli eventuali ospiti (censita come autorimessa) della superficie di ulteriori mq 40, composta da un monolocale con antibagno e bagno, mentre al piano interrato del fabbricato principale, accessibile mediante scala interna o accesso carrabile dall'esterno, è suddiviso in vari locali con grande stanza, la cantina, una camera, un bagno, tutte le stanze dispongono di finestre a bocca di lupo con un buon rapporto aereo-illuminante, inoltre è presente un grande “scanna fosso” in gran parte utilizzato come magazzino ed autorimessa.
Il terreno circostante la villa è di circa 2,2 ettari a seminativo, piantumato con circa 60 piante di olivo in piena produzione e alcuni alberi da frutto. Possibilità di realizzare una piscina ed un annesso agricolo di circa 35 mq.
L'immobile è in classe "A" e dispone di un impianto fotovoltaico da 7 KW con incentivo statale annuo, pannelli solari, impianto geotermico, tetto ventilato e muri perimetrali da 60 cm (38 cm di poroton + 2 cm di sughero + 20 cm di pietra a faccia vista), riscaldamento a pavimento in travertino, in sostanza è un'abitazione ad alto risparmio energetico.
Il bellissimo e rinomato Borgo di Casale Marittimo che dista 4 km, offre una qualità della vita invidiabile, con paesaggi mozzafiato e un'atmosfera accogliente e rilassante, da cui si possono raggiungere facilmente le splendide città d’arte di Volterra, San Gimignano, Siena, Firenze, Lucca e Pisa dove è presente anche l'aeroporto internazionale e le spiagge della rinomata Costa degli Etruschi dove possiamo trovare splendide spiagge incontaminate con alle spalle la pineta oltre a strutture balneari. che dista circa 13 chil...
Dove si trova
Informazioni generali
Accessori
Efficienza energetica
Richiesta informazioni all'agenzia
Richiedi informazioni all'agenzia
