Appartamento da ristrutturare a Pistoia
Appartamento in Vendita di 120 mq a Pistoia
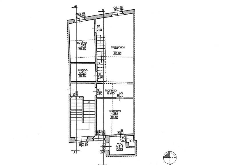
PER MOTIVI DI PRIVACY, L'INDIRIZZO E IL PUNTATORE NELLA MAPPA SONO PURAMENTE INDICATIVI E NON CORRISPONDONO ESATTAMENTE ALL'UBICAZIONE DELLA PROPRIETÃ, A RICHIESTA DAREMO TUTTE LE INFORMAZIONI NECESSARIEIn centro a Pistoia (no ZTL) proponiamo questo appartamento di circa 120 mq posto al piano secondo (no ascensore) di una piccola palazzina, è disposto su due livelli ed è completamente da ristrutturare, fa parte dell'appartamento un'ampia terrazza.Il primo livello è composto da soggiorno, cucina, camera con bagno privato ad uso esclusivo, bagno e ripostiglio.Il secondo livello è composto da alcuni vani mansardati con una bella camera con bagno ed accesso ad una ampia terrazza.Alleghiamo le planimetrie dello stato di progetto.
Dove si trova
Informazioni generali
Accessori
Efficienza energetica
Richiesta informazioni all'agenzia
Richiedi informazioni all'agenzia
