Bifamiliare in Santa Maria in zona Borgo a Buggiano a Buggiano
Bifamiliare in Vendita di 105 mq a Buggiano
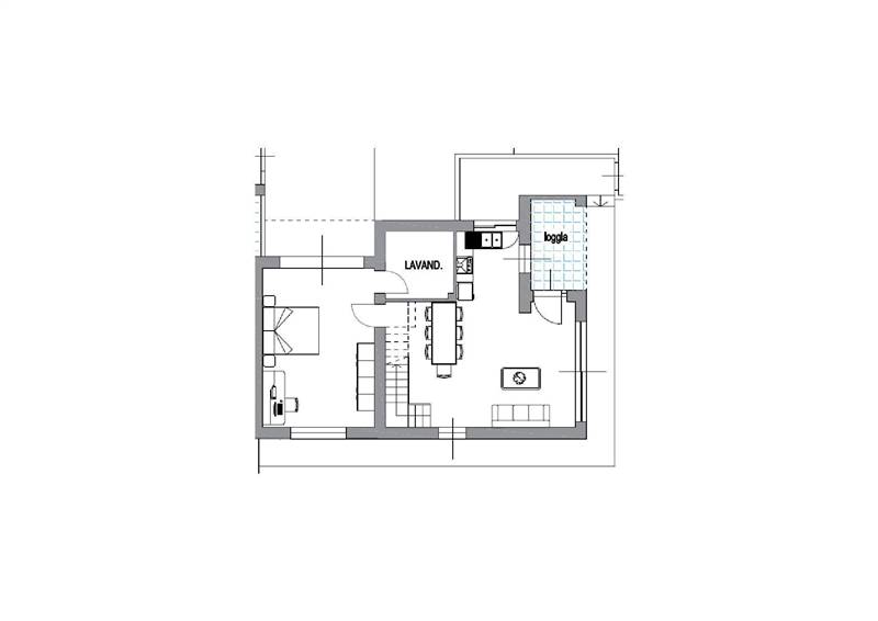
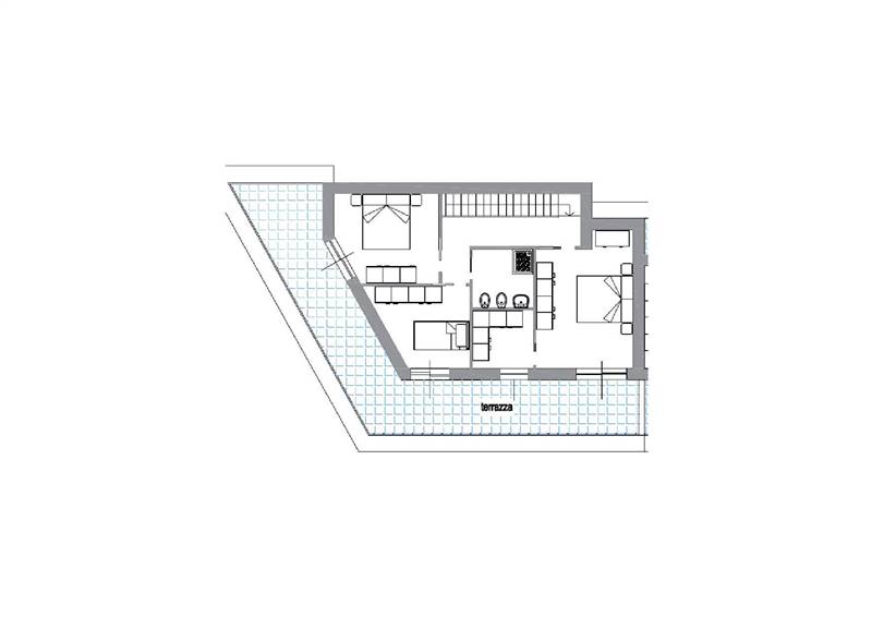
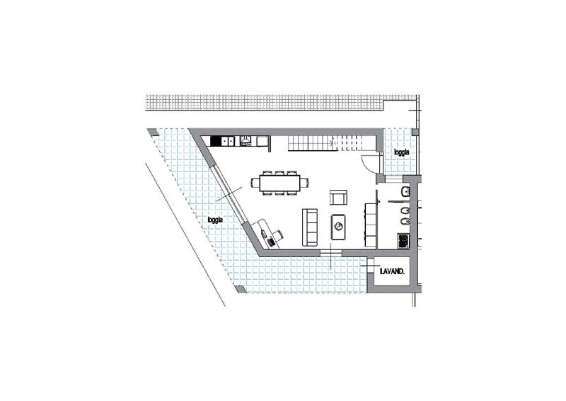
La bifamiliare sorgerà fuori dal centro di Borgo a Buggiano, in unâarea ben servita, in zona Santa Maria. Si compone di 2 unità immobiliari, entrambe con giardino, accesso indipendente e posto auto coperto (rimessa). I villini si sviluppano su due piani, con struttura antisismica in cemento armato e struttura verticale portante ECOSISM. La copertura sarà piana e verrà realizzata in latero-cemento e pannelli isolanti. Gli impianti saranno di ultima generazione: riscaldamento a pavimento con pompa di calore, impianto fotovoltaico, predisposizione impianto di raffrescamento. Tutte le finiture di capitolato saranno di primarie ditte produttrici, in prima scelta, di fascia medio alta. Il Cliente avrà facoltà di personalizzare quanto proposto dall'impresa ed avrà a disposizione un architetto per la scelta dei materiali. L'impresa è in grado di offrire soluzioni personalizzate, complete anche per gli arredi. Progetti e capitolato visionabili presso l'ufficio tecnico.VILLETTA ASuperficie lotto 670 mqSuperficie abitazione 131 mq oltre accessoriaDue posti auto privati ad uso esclusivoLibera su tre latiFotovoltaico e riscaldamento a pavimento CLASSE ENERGETICA A4Struttura antisismicaFiniture di pregioPREZZO â¬360.000 più IVAVILLETTA BSuperficie lotto 310 mqSuperficie abitazione 99 mq oltre superficie accessoriaLibera su tre latiFotovoltaico e riscaldamento a pavimento CLASSE ENERGETICA A4Struttura antisismicaFiniture di pregioPersonalizzabilePrezzo â¬280.000 più IVA
Dove si trova
Informazioni generali
Accessori
Efficienza energetica
Richiesta informazioni all'agenzia
Richiedi informazioni all'agenzia
