Ufficio in Via Porta Lucchese, 1 in zona Centrale a Pistoia
600 m2
3 vani
€ 590.000
vendita Ufficio Pistoia
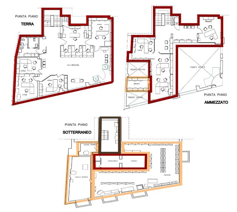
In zona centrale di Pistoia, Porta lucchese, disponiamo di immobile attualmente adibito a filiale bancaria: libero su 2 lati, disposto su 3 piani, di cui uno soppalcato. Il piano terra è formato da un ampia stanza più 3 stanze ed i servizi. Da questo piano si ha accesso sia al piano superiore, suddiviso come il piano terra, sia al piano seminterrato dove troviamo l' archivio ed altre stanze ad uso rimessa e locali tecnici. Immobile di complessivi mq 600 circa. Categoria catastale D/5.
Informazioni generali
800PLUCCHESEVCU
600 m2
3 locali
€ 590.000
Vendita
Ufficio
Pistoia
Centrale
Via porta lucchese, 1
24/03/2025
Accessori
Inesistente
Abitabile
Richiesta informazioni all'agenzia
Richiedi informazioni all'agenzia
Pistoia Est
Via Attilio Frosini 24b
51100
Pistoia
(PT)
P.IVA: 01718630476
