Villa a Comiso
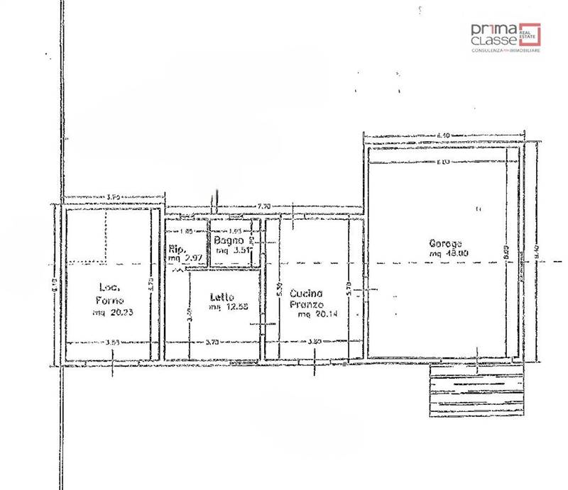
Vendesi in c. da Serra Carcara, casa singola di circa 70 mq, situata in una zona tranquilla e ben collegata, a pochi passi dall’Aeroporto di Comiso.L’immobile si compone di cucina-pranzo, camera da letto, bagno, ripostiglio.A completare la proprietà troviamo un ampio garage di circa 50 mq e un vano accessorio da personalizzare in base alle proprie esigenze: ideale come seconda camera, studio o ambiente relax.La casa sorge su un lotto di terreno di circa 550 mq, offrendo ampi spazi esterni da valorizzare, perfetti per giardino, area barbecue o spazi verdi.L’immobile necessita di lavori di ristrutturazione, ma grazie alla sua posizione strategica, rappresenta una ottima opportunità sia come abitazione privata che come investimento, ad esempio per la realizzazione di un B&B o casa vacanze, data la vicinanza con l’aeroporto.
