Villa a Vittoria
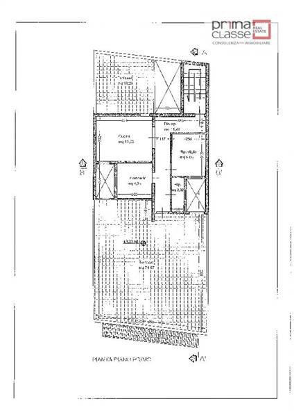
Vendesi a Scoglitti in via Neli Maltese cosa singola.L'immobile si sviluppa principalmente al piano terra dove troviamo, con una superficie di mq 130 circa, ingresso, un ampia cucina, due camere da letto, una cameretta, bagno, ripostiglio e tre cavediAl primo piano di mq 50 circa, allo stato rustico, troviamo una seconda cucina, una lavanderia e due ripostigli aggiuntivi, che offrono ulteriori possibilità di utilizzo. Due ampi terrazzi regalano spazi esterni ideali per rilassarsi e godere del sole.Completa la proprietà un garage privato, perfetto per proteggere la tua auto. L'immobile è ubicato in zona residenziale tranquilla e vicino a molteplici attività commerciali.
