Bifamiliare in Via Toscana a Russi
STUPENDE VILLETTE A RUSSI – PROGETTO STUDIO BAZZANI- VICARI RAVENNA
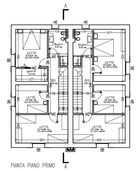
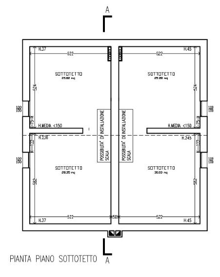
Realizziamo villette abbinate di grande valenza architettonica su due livelli nel villaggio “Gucci” a Russi , tra le Via Gucci – Via Azzali progettato dagli architetti dello studio “ BVA – Bazzani Vicari Architetti Associati ” di Ravenna 0544.591292. Design elegante e minimalista. Sapiente equilibrio nella composizione dei prospetti con l' uso di materiali moderni . Piano terra con soggiorno e ampia cucina pranzo, lavanderia e bagno. Piano primo con due camere matrimoniali e una singola, bagno e possibilità di scala per accesso al piano sottotetto. Esternamente 2 posti auto con possibilità di pergolato e casetta in legno da 9mq.
Costruzione antisismica e di classe energetica a partire dalla “B” con protocollo Emilia Romagna. Ottime finiture da capitolato con possibilità di personalizzazione. Direttamente dal costruttore. Prezzo chiavi in mano a partire da €.290.000 Info e contatti. 348.2316614- 0547.1859021.
Dove si trova
Informazioni generali
Accessori
Efficienza energetica
Richiesta informazioni all'agenzia
Richiedi informazioni all'agenzia
