Casa semi indipendente in Via Pinarella in zona Tagliata a Cervia
Casa semi indipendente in Vendita di 100 mq a Cervia
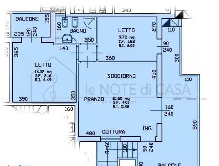
Soluzione spaziosa, vicina alla scuola materna ed elementare di Tagliata, ideale per una famiglia che cerca indipendenza, riservatezza e comodità ai servizi. A soli 500 metri dalla pineta e la spiaggia, posizionata in zona residenziale.L'appartamento si trova in una palazzina composta da una decina di unità immobiliari.All piano terra si trova l'ingresso pedonale indipendente a cui si accede a un piccolo giardinetto, ideale per chi ha animali.La scala esterna collega privatamente il primo piano al piano interrato, dove troviamo il box auto.Al primo piano troviamo un balcone spazioso, orientato a nord-est, ideale da vivere nelle stagioni calde in famiglia o tra amici.Un'ampia zona giorno con cucina spaziosa ad angolo, disimpegno, camera da letto matrimoniale con balconcino, bagno e cameretta.Al piano mansardato troviamo un'altra stanza con balconcino e un vano bagno.L'appartamento possiede riscaldamento a termosifoni, alimentato da caldaia autonoma, e aria condizionata nelle camere da letto.Per ulteriori informazioni e visite:daniele@lenotedicasa.itcell: 3476989967
Dove si trova
Informazioni generali
Accessori
Efficienza energetica
Richiesta informazioni all'agenzia
Richiedi informazioni all'agenzia
