Trilocale in nuova costruzione a Misano Adriatico
77 m2
3 vani
2 camere
1 bagno
ascensore
€ 345.000
Misano A. vicino al mare appartamento nuovo
Misano Adriatico – appartamento vista mare in palazzina nuova
A poca distanza dal mare, appartamento al primo piano servito da ascensore, in contesto recente con finiture moderne.
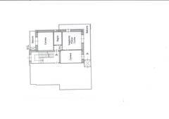
L’immobile è composto da:
soggiorno con angolo cottura
due camere da letto
un bagno finestrato
balconi per un totale di 22 mq
cantina di 10 mq compresa nel prezzo
Classe energetica A.
Ottime finiture, possibilità di personalizzazione.
Prezzo richiesto: € 345.000
Rif. A307/4
Per informazioni:
Grieco Immobiliare – Tel. 0541/963899
Email: info@griecoimmobiliare.com
Dove si trova
43.9781812.69634
Informazioni generali
A307/4
77 m2
3 locali
€ 345.000
Vendita
Appartamento
Misano Adriatico
Signorile
2026
12/05/2025
Accessori
1
2
1 di 3, con ascensore
Autonomo
Nuova costruzione
Angolo cottura
10 mq
22 mq
Efficienza energetica
A
A
Richiesta informazioni all'agenzia
Richiedi informazioni all'agenzia
Grieco Immobiliare
via D'Azeglio 26
47841
Cattolica
(RN)
P.IVA: 03421900402
