Villa a schiera abitabile a Montescudo-monte Colombo
vendita Villa a schiera Montescudo
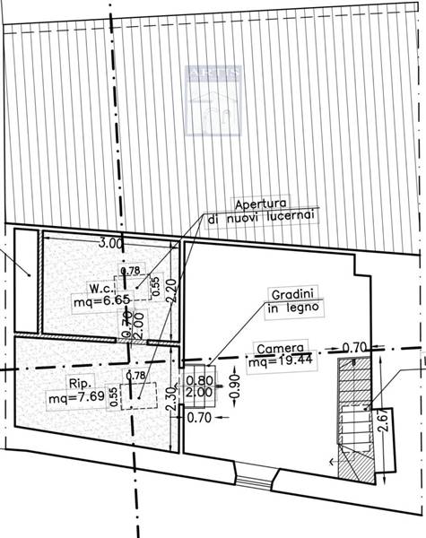
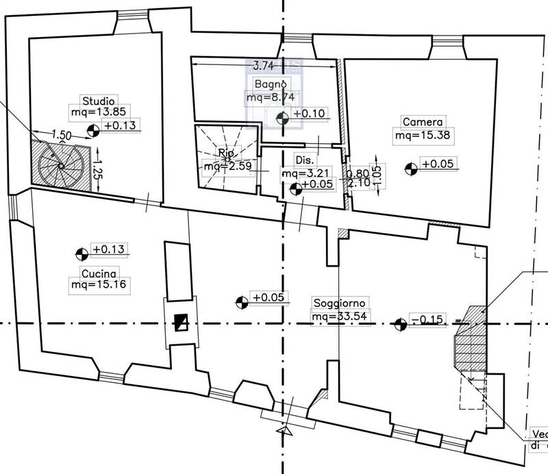
Adiacente al centro storico di Montescudo, splendida casa abbinata da un solo lato, semiarredata. Completamente ristrutturata nel 2008 e disposta su 3 livelli. Al piano terra si trova un'ampia zona giorno, una prestigiosa cucina in muratura con favoloso camino a vista, una camera e uno studio. Al piano primo una camera ed un bagno, più ripostiglio. Mentre al piano seminterrato vi sono una tavernetta, una cantina ed una caratteristica grotta ideale per mantenere alla giusta temperatura i tuoi vini o formaggi. L'edificio è dotato di porta blindata, cancelli di sicurezza, impianto di allarme. Esternamente è presente un ampio giardino di circa 300 mq. con gazebo e vari alberi da frutto. Incluso posto auto.
