Locale commerciale a Fiumicino
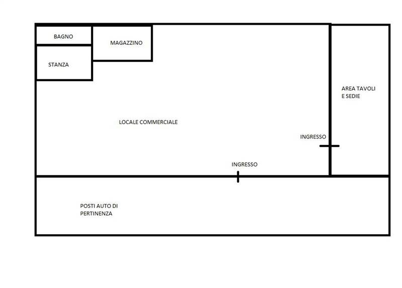
ISOLA SACRA: CESSIONE ATTIVITA' NEGOZIO DI PRODOTTI ALIMENTARI DI NICCHIA, ENOTECA E GASTRONOMIALa 3Q Immobiliare di Fiumicino ti propone in vendita la cessione d'attività di uno storico negozio di prodotti alimentari di nicchia, enoteca e gastronomia, nella zona di Isola Sacra, più precisamente in via Passo Buole angolo Via Trincea delle Frasche, posizione ottima e strategica perchè il locale è ben visibile, passaggio continuo e soprattutto molto conosciuto vista l'ottima qualità dei prodotti e la storicità.Il locale commerciale è di circa 80mq interni, composti da un ampia sala dove sono posti i prodotti per la vendita, un magazzino, un stanza per la preparazione dei prodotti ed un bagno; inoltre c'è la possibilità di mettere nell'area privata 4 posti auto per i clienti e nella corte di pertinenza tavoli e sedie per mangiare all'esterno.Il negozio è aperto da quasi 20 anni, la posizione angolare permette di avere la doppia entrata e sono presenti in totale 3 vetrine su strada.Il contratto di locazione è stato da poco rinnovato, è partito nel 2024 ed essendo un 6+6 la scadenza è nel 2036, il canone è di euro 1.350€ al mese ed il deposito è di 3 mensilità.Nel prezzo di vendita della cessione dell'attività è compreso tutto quello che sono le attrezzature e materiali del locale, quindi frigoriferi, banchi di lavoro, vetrine, climatizzare, bancone, scaffalatura ed altro.Non perdere questa grande occasione di prendere in gestione un locale commerciale per la vendita di prodotti alimentari ed enoteca, nella zona di Isola Sacra, ottimo investimento visto la storicità del posto ed anche ottima soluzione per te che stai cercando un negozio di questa tipologia, perfetto per una conduzione familiare.Non esitare a contattarci per chiedere maggiori informazioni e per fissare un appuntamento con noi!
Dove si trova
Informazioni generali
Accessori
Efficienza energetica
Richiesta informazioni all'agenzia
Richiedi informazioni all'agenzia
