Locale commerciale a Roma
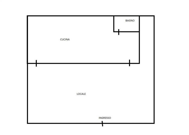
ROMA-OSTIA LEVANTE: CESSIONE ATTIVITA' NEGOZIO DI ALIMENTARI La nostra agenzia immobiliare ti propone in vendita la cessione completa di un'attività, negozio di alimentari ad Ostia Levante, più precisamente in via Ferdinando Acton.Il locale si trova su strada al piano terra, sono circa 50mq commerciali ed è disposto angolarmente quindi ha una doppia vetrina, è aperto da circa un anno e internamente sia arredamento che mobilio e macchinari sono tutti compresi nel prezzo a parte il forno elettrico.L'immobile è così composto: ingresso nel locale con esposizione di tutti i prodotti per la vendita, bancone, frigoriferi, una cucina e un bagno di pertinenza per i dipendenti.Lo stabile è degli anni 70' circa e la spesa condominiale è per ogni 3 mesi 230 euro.Il contratto di locazione in corso è ad uso commerciale quindi un 6+6 e quindi essendo un'attività aperta da solo un anno ci sono ancora 11 anni a disposizione, la quota mensile di affitto è di euro 1.100, con una cauzione di 2 mesi anticipati cioè 2.200 euro.Il locale si trova in ottimo stato di manutenzione, possedendo la cucina, può essere usato anche come ristorante o tavola calda.La zona è centrale e visibile, quindi ottimo per chi vuole fare un investimento in un punto di Ostia Levante molto conosciuto e di passaggio.Non perdere questa grande occasione, contattaci per maggiori informazioni e fissa un appuntamento con noi!
Dove si trova
Informazioni generali
Accessori
Efficienza energetica
Richiesta informazioni all'agenzia
Richiedi informazioni all'agenzia
Cerca nel comune di Roma
Lista delle zone
- Infernetto/Malafede/Madonnetta a Roma
- Casilina/ Prenestina/ Centocelle/ Alessandrino
- Monte Sacro/ Talenti/ Vigne nuove
- Tuscolano/ Don Bosco/ Cinecittà
- Prati/ Delle Vittorie/ Borgo
- EUR (Europa)/ Laurentino/ Montagnola
- Centro Storico
- Nuovo Salario/ Prati Fiscali/ Colle Salario
- Boccea/ Torrevecchia/ Pineta Sacchetti
- S.Giovanni/ Esquilino/ San Lorenzo/
