Quadrilocale a Roma
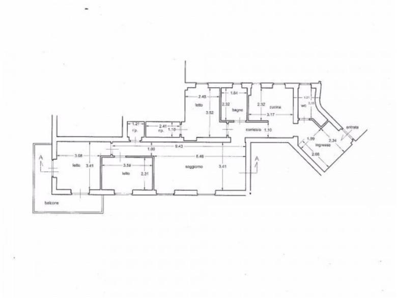
Ostia levante Grimaldi Casta piano 2° piano, composto da: salone doppio, cucina abitabile camera matrimoniale, 2 camerette, doppi servizi, balcone. ascensore. PER APPUNTAMENTI COMUNICARE IL N. DI RIF. 1528344 Per info Marco Salerno Tel 06.45447848 -cell. 3339992553 E-mail salernoimmobiliaregroup@gmail.com Servizi • Intermediazione immobiliare per acquisto, vendita e locazione di ogni tipo di immobile • Sopralluogo, stima e consulenza gratuita; • Pubblicità effettuata su portali internet, cartelli, e riviste, corredata da fotografie, video dell’immobile trattato per evidenziare maggiormente il prodotto; • Gestione appuntamenti, redazione di proposte d’acquisto/affitto, stesura preliminare di compravendita/contratto di locazione; • Assistenza per tutta la durata della trattativa fino all’atto definitivo (rogito) • Supporto tecnico, legale, notarile e fiscale • Consulenza diretta e personalizzata in merito alle richieste di mutui • Visure catastali e ipotecarie; • Controllo accurato della documentazione urbanistica; • Indicazioni di Professionisti (Ingegneri per certificato energetico e/o Geometri per eventuale nuovo accatastamento, planimetria,); • Architetti nostri collaboratori consigliano gratuitamente e senza alcun impegno varie soluzioni di ristrutturazione dell'immobile. • L’attenzione, la professionalità che precede le fasi della trattativa, l’acquisizione di tutti i documenti riguardanti l'immobile oggetto della compravendita / locazione, la massima disponibilità nel rispondere al meglio a tutte le esigenze del cliente, sono solo alcuni aspetti della nostra filosofia lavorativa. La soddisfazione del cliente è la prima ragione della nostra crescita lavorativa. Compra casa con l'MLS: migliaia di agenzie, in una sola agenzia.
Dove si trova
Informazioni generali
Accessori
Efficienza energetica
Richiesta informazioni all'agenzia
Richiedi informazioni all'agenzia
Frimm servizi immobiliari
Cerca nel comune di Roma
Lista delle zone
- Infernetto/Malafede/Madonnetta a Roma
- Casilina/ Prenestina/ Centocelle/ Alessandrino
- Monte Sacro/ Talenti/ Vigne nuove
- Tuscolano/ Don Bosco/ Cinecittà
- Prati/ Delle Vittorie/ Borgo
- EUR (Europa)/ Laurentino/ Montagnola
- Centro Storico
- Nuovo Salario/ Prati Fiscali/ Colle Salario
- Boccea/ Torrevecchia/ Pineta Sacchetti
- S.Giovanni/ Esquilino/ San Lorenzo/
