Trilocale in Via Benci e Gatti, 5 a Civitavecchia
vendita Appartamento Civitavecchia
CIVITAVECCHIA ADIACENZE VIALE GUIDO BACCELLI
Al centro di Civitavecchia, più precisamente, in Via Benci e Gatti, proponiamo la vendita di un immobile posto al I° piano di uno stabile di 4 con facciata in cortina.
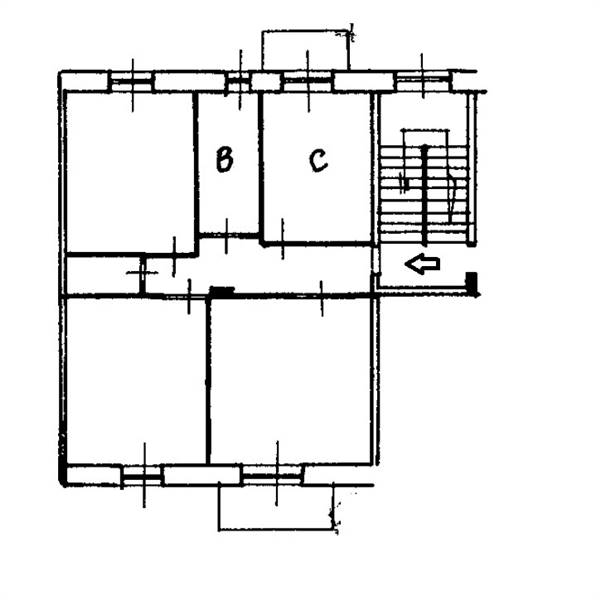
L’immobile di circa 105 mq è composto da ingresso, salone, due camere matrimoniali, cucina abitabile, servizio, ripostiglio e due balconi. Per la sua disposizione è facilmente trasformabile in soggiorno con angolo cottura, tre camere da letto servizio e ripostiglio.
Sito in una posizione strategica, tranquilla e semi centrale, con tutti i servizi a portata di mano quali scuole, supermercati, fermate del trasporto pubblico e attività commerciali, la soluzione proposta risulta essere ottima per giovani coppie che devono affrontare l'acquisto di una prima casa ma anche per chi ha voglia di investire in attività ricettive come B&B o una casa vacanze,
Prezzo di vendita € 145.000,00. Classe energetica di appartenenza: G.
Informazioni generali
Accessori
Efficienza energetica
Richiesta informazioni all'agenzia
Richiedi informazioni all'agenzia
