Trilocale in Via Einaudi, 10 a Marino
vendita Appartamento Marino
NUOVO PROGETTO A FRATTOCCHIE!!
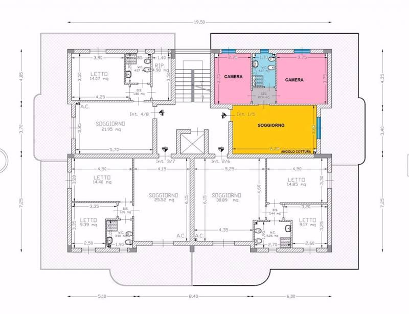
A ridosso di via Appia e di via Nettunense, comoda per gli spostamenti e per i servizi principali con il centro commerciale “La Nave” a meno di 500mt, è in costruzione un nuovo progetto edilizio di appartamenti comodi internamente con ampi spazi esterni. Edificio di ultimissima generazione in classe A, che ospita 8 unità immobiliari, 4 al primo piano e 4 al secondo con ascensore.
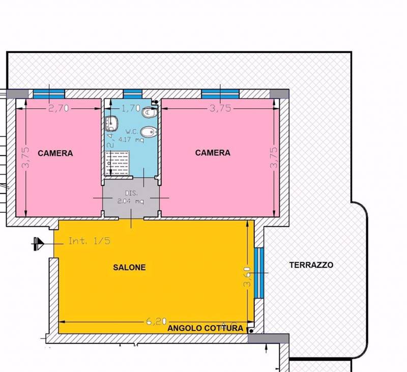
Tipologia trilocale al primo e secondo piano (INTERNI 1 E 5) con doppia esposizione, composto da Soggiorno con Angolo Cottura, disimpegno, Camera da letto, Cameretta, Bagno finestrato e grande Terrazzo abitabile perimetrale alla quale si accede da ogni ambiente.
Attualmente è possibile personalizzare la casa con la scelta dei materiali.
Prezzo di vendita Euro 175.000 + posto atuto coperto euro 9.000
Vi è inoltre la possibilità di acquistare con una trattativa a parte Box Auto Doppio o Singolo e una Cantina.
Per maggiori informazioni sulle tipologie abitative contattateci al numero 06.9388915 oppure inviateci un sms WhatsApp al 345.7610984
Informazioni generali
Accessori
Richiesta informazioni all'agenzia
Richiedi informazioni all'agenzia
