Villa a Fiumicino

110 m2
4 vani
4 camere
2 bagni
box
€ 365.000
Foto Foto
Foto Foto
Foto Foto
Foto Foto
Foto Foto
Foto Foto
Foto Foto
Foto Foto
Foto Foto
Foto Foto
Foto Foto
Foto Foto
Foto Foto
Foto Foto
Foto Foto
Foto Foto
Foto Foto
Foto Foto
Foto Foto

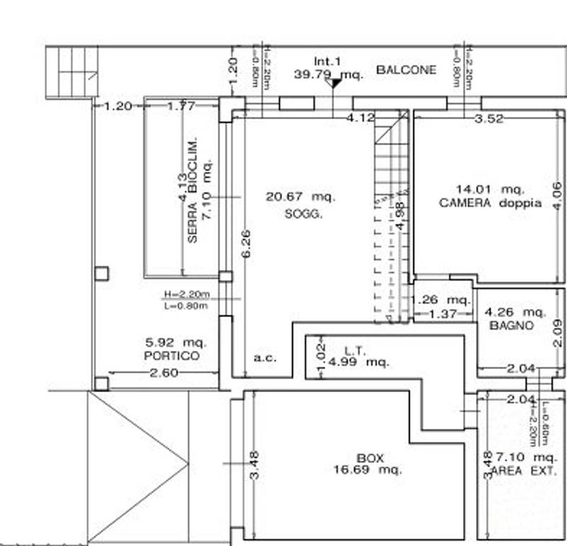
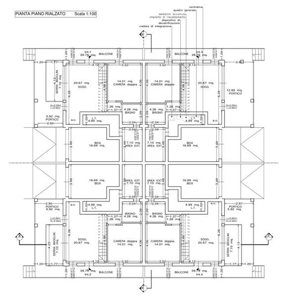
ISOLA SACRA: NUOVA COSTRUZIONE DI 4 VILLE IN CLASSE A4 SU 2 LIVELLI CON GIARDINO E BOX AUTOLa 3Q Immobiliare di Fiumicino, vi propone in vendita, in una tranquilla traversa di Via Trincea delle Frasche, nella suggestiva zona di Isola Sacra, la realizzazione di porzioni di ville quadrifamiliari. Il cantiere avrà inizio ad inizio 2026 e si prevede la sua conclusione entro dicembre 2026.Queste eleganti ville su 2 livelli fuori terra offriranno una distribuzione intelligente degli spazi. Al piano terra, accoglierà un luminoso soggiorno con angolo cottura, una camera, un bagno, un garage e un locale tecnico, con ciascuna villa che godrà di un portico e di un ampio giardino dove potersi rilassare. La soffitta al piano secondo sarà arricchita dagli abbaini così sarà possibile sfruttare le camere in totale comodità, con servizio di pertinenza.Le ville saranno dotate di tutti i comfort ed agevolazioni che una nuova costruzione può avere quindi saranno presenti, pannelli fotovoltaici, cappotto termico, pompa di calore con bocchette caldo/freddo, no gas, ma tutto completamento elettrico. I progetti e il capitolato sono già disponibili e visionabili in ufficio.Tuttavia, si precisa che il presente annuncio ha valore puramente indicativo e non costituisce un elemento contrattuale né un presupposto vincolante. Le date di inizio e fine del cantiere potrebbero variare in base alle decisioni degli organi competenti per il rilascio dei titoli.Per ulteriori dettagli e per esprimere il tuo interesse, ti invitiamo a contattarci così da poter organizzare un incontro con noi!

Dove si trova

41.7538312.24933

Informazioni generali

MS175
110 m2
4 locali
€ 365.000
Vendita
Villa
Fiumicino
2026
19/01/2026

Accessori

2
4

Richiesta informazioni all'agenzia

Logo agenzia

3Q immobiliare srl

Piazza Calipso 25 Roma
Roma (RM)

Autorizzazione al trattamento dei dati personali (Mostra)
Dichiaro di aver letto l'informativa sul trattamento dei dati personali e autorizzo espressamente BasicSoft S.r.l. gestore di RisorseImmobiliari.it al trattamento dei dati da me forniti. Accetto inoltre che i dati sopra inseriti siano trasmessi alle agenzie immobiliari interessate per essere da loro ricontattato. BasicSoft S.r.l. declina ogni responsabilità riguardo al trattamento di tali dati da parte delle agenzie immobiliari.
*) Riempire tutti i campi contrassegnati. Almeno uno dei campi telefono e/o cellulare devono essere riempiti
Contatta
RisorseImmobiliari.it © Copyright 2026 - Tutti i diritti sono riservati BasicSoft S.r.l. | C.F./P.IVA: 05269090485 | Reg. Imprese di Firenze | Cap.Soc. Euro 10.330,00 I.V.