Appartamento in Via Sichelmanno in zona Italia , Paradiso di Pastena , Santa Margherita a Salerno
130 m2
5 vani
2 bagni
box
ascensore
€ 450.000
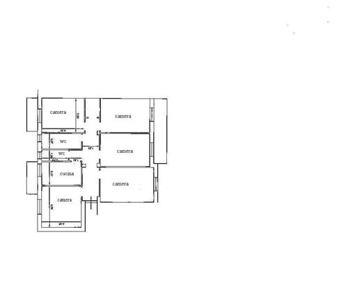
Pastena Centro &Attico da ristrutturare , al 6° ed ultimo piano con ottima esposizione e terrazzo adiacente, composto da 5 camere , cucina abitabile, 2 bagni, ripostiglio. Terrazzo di copertura .Garage di 50 mq. &DETRAZIONE DEL 50% SUI COSTI DI RISTRUTTURAZIONE !
Dove si trova
40.6652214.79657
Informazioni generali
01VE1364
130 m2
5 locali
€ 450.000
Vendita
Appartamento
Salerno
Italia / Paradiso di Pastena / Santa Margherita
via sichelmanno
Libero
24/09/2014
Accessori
2
Da ristrutturare
si
Efficienza energetica
G
G
0 kwh/m3 anno
