Trilocale in zona Casal Velino Scalo a Castelnuovo Cilento
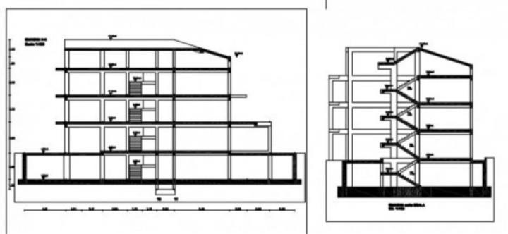
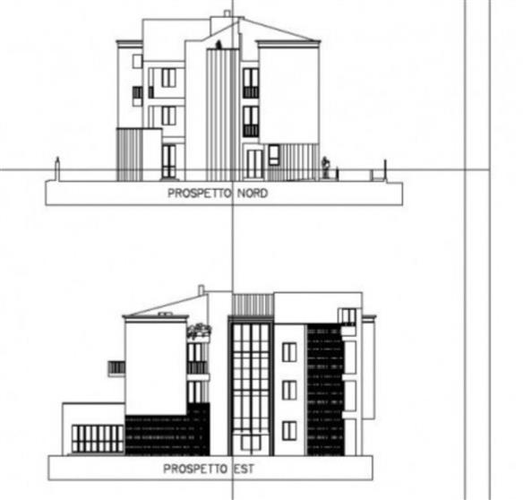
Rif: residence velina - Nel Parco del Cilento, a poca distanza dalla città di Elea, sulla costa Cilentana, Vendesi fabbricato in corso di costruzione originariamente adibito a Casa-Albergo per Anziani, con destinazione d’uso variata in attività commerciali e residenziali. Il fabbricato è disposto su tre livelli fuori terra e garage interrati. Dimensione circa 500mq a piano, con mansarda abitabile (per un totale di circa 3000 mq). La struttura è realizzata secondo le ultime disposizione antisismiche deliberate per strutture ospedaliere e ricettive, con spazi previsti per l’impianto di ascensori (garage-mansarda) e più possibilità di fuga. Il fabbricato viene ceduto completo di progetti edili, studi di fattibilità, prove a campione della solidità del calcestruzzo e privo di ipoteche.
Dove si trova
Informazioni generali
Accessori
Efficienza energetica
Richiesta informazioni all'agenzia
Richiedi informazioni all'agenzia
