Appartamento in nuova costruzione a Alghero
Appartamento - Bilocale a Alghero
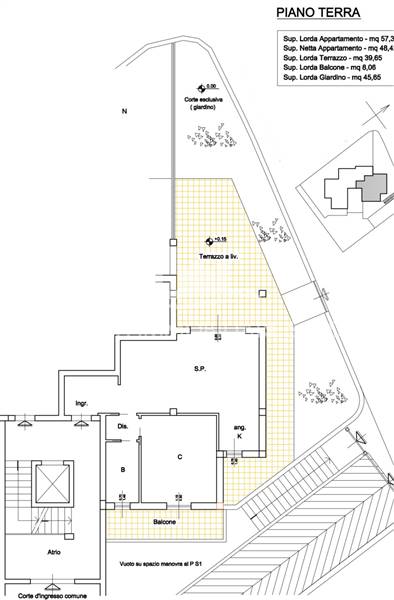
Alghero – bilocale con giardino in nuova palazzina di pregio
In elegante palazzina di nuova realizzazione, proponiamo in vendita l’ultimo bilocale con giardino, con consegna prevista per il 2026.
L’edificio sarà realizzato nel pieno rispetto delle più recenti normative in materia di efficienza energetica e costruito secondo moderne tecniche costruttive, tali da garantire la massima classe energetica (NZEB – Nearly Zero Energy Building).
Il progetto prevede un fabbricato dal design raffinato e luminoso, con sole due unità abitative per piano, una scelta che assicura a ogni appartamento tre lati liberi e una maggiore privacy.
La palazzina sarà inoltre dotata di impianto fotovoltaico condominiale e gode di un’ottima esposizione, inserita in un contesto tranquillo e non densamente edificato.
L’appartamento si sviluppa internamente con un ampio soggiorno con angolo cottura, una camera da letto e un bagno.
Gli spazi sono stati studiati per offrire comfort e funzionalità, rendendo l’immobile ideale non solo come casa vacanze, ma anche come residenza principale per una coppia.
A valorizzare ulteriormente la proprietà sono gli spazi esterni, vero punto di forza dell’unità: un balcone di servizio sul retro e una grande veranda pavimentata che si sviluppa su due lati della casa, affiancata da una porzione di giardino privato. Uno spazio riservato e versatile, perfetto per momenti di relax all’aperto, per pranzi e cene all’esterno o per creare un ambiente adatto anche agli animali domestici.
Possibilità di abbinare, con trattativa separata, un box auto al piano seminterrato.
Contattaci subito per visionare i progetti e riservare il tuo appartamento.
In questa fase è ancora possibile personalizzare gli interni.
La posizione indicata è puramente approssimativa: richiedi maggiori informazioni per tutti i dettagli.
Agenzia Immobiliare Sarda è una società di intermediazione immobiliare regolarmente registrata® con tutte le relative licenze ed autorizzazioni. Tutto il materiale presentato è destinato esclusivamente a scopo informativo. Sebbene questo materiale sia ritenuto corretto, può essere soggetto a errori, omissioni ovvero modifiche. Tutte le informazioni sulla proprietà, inclusi, a titolo esemplificativo, metri quadrati, numero di camere, numero di camere da letto, zona e quartiere, nelle proprietà o informazioni mostrate devono essere verificate dal proprio avvocato, architetto, geometra o esperto di fiducia.
La visione delle unità immobiliari è soggetta a previa sottoscrizione del foglio di visita. Tale dichiarazione è utile ai fini della conoscibilità dell’immobile grazie all’agenzia immobiliare.
...
