Terreno edificabile a Sassari
Terreno edificabile a Ottava, Sassari
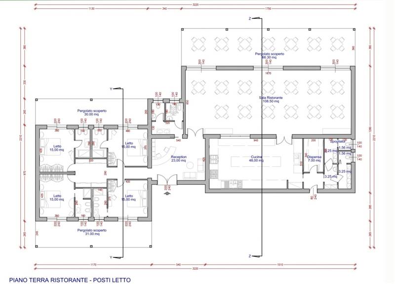
Ottava, a soli 7 minuti dalla Spiaggia di Platamona, si propone un Terreno con Progetto Approvato per la Costruzione di un Punto Ristoro con annessa Struttura Turistico Ricettiva.
Il lotto si estende su una superficie di 30.000 metri quadrati, attualmente non recintato, e gode di una posizione privilegiata a pochi minuti dalla costa e da diverse attrazioni archeologiche e naturalistiche. Sul terreno è già presente una Cabina Elettrica e un eventuale allaccio alle reti idrica ed elettrica risulta agevole.
Il progetto approvato prevede la realizzazione di una struttura di circa 840 metri quadrati per ospitare un polo multifunzionale con ristorante/bar, posti letto e aree attrezzate dedicate al relax e alle attività all’aperto.
Il territorio mantiene un equilibrio tra ruralità, natura e storia, offrendo uno scenario autentico ma al tempo stesso connesso ai principali flussi turistici e culturali dell’isola. In questa cornice, la presenza di strutture ricettive già operative e di ampie aree verdi conferisce alla località un potenziale straordinario per sviluppare un polo turistico e sportivo integrato, capace di valorizzare le risorse naturali e culturali di Ottava e dell’intero Nord Ovest Sardegna.
Questa è un'ottima opportunità per gli investitori interessati al settore dell'ospitalità. Non lasciatevi sfuggire questa possibilità di effettuare un investimento strategico in una posizione di grande valore.
Agenzia Immobiliare Sarda è una società di intermediazione immobiliare debitamente registrata, con tutte le licenze e autorizzazioni necessarie. Tutti i materiali presentati sono forniti esclusivamente a scopo informativo. Sebbene riteniamo che le informazioni fornite siano accurate, potrebbero essere soggette a errori, omissioni o modifiche. Tutti i dettagli immobiliari, inclusi, ma non limitati a metratura, numero di stanze, numero di camere da letto, zona e quartiere, devono essere verificati dal proprio avvocato, architetto, geometra o esperto di fiducia.
Le visite alle proprietà sono soggette alla previa compilazione di un modulo di visita. Questa dichiarazione è necessaria per comprendere meglio l'immobile tramite l'agenzia immobiliare....
