Trilocale abitabile a Alghero
Appartamento - Trilocale a Alghero
Alghero – a pochi passi dal mare e dai principali servizi
In posizione comoda e strategica, proponiamo appartamento ideale sia come abitazione che come investimento per rental income, situato in una zona tranquilla e ben servita della città.
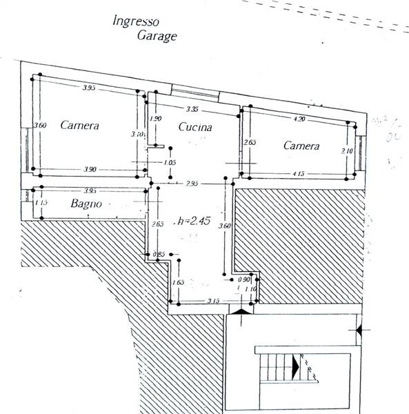
L’immobile, in buone condizioni, si trova al piano seminterrato (accatastato A/3) ed è facilmente accessibile sia dalla corte condominiale interna, con ingresso diretto al piano, sia dall’ingresso condominiale principale.
Gli interni accolgono in un luminoso soggiorno con angolo cottura a vista, finestrato e dotato di climatizzatore, perfetto per momenti di relax. La zona notte comprende due comode camere da letto e un bagno con doccia, funzionale e ben organizzato.
Soluzione versatile e interessante per chi desidera vivere Alghero tutto l’anno o realizzare un’attività ricettiva, grazie alla posizione strategica, a pochi passi dal Lido e da tutti i servizi essenziali.
Un’opportunità da non perdere nel cuore di Alghero.
Agenzia Immobiliare Sarda è una società di intermediazione immobiliare regolarmente registrata® con tutte le relative licenze ed autorizzazioni. Tutto il materiale presentato è destinato esclusivamente a scopo informativo. Sebbene questo materiale sia ritenuto corretto, può essere soggetto a errori, omissioni ovvero modifiche. Tutte le informazioni sulla proprietà, inclusi, a titolo esemplificativo, metri quadrati, numero di camere, numero di camere da letto, zona e quartiere, nelle proprietà o informazioni mostrate devono essere verificate dal proprio avvocato, architetto, geometra o esperto di fiducia.
La visione delle unità immobiliari è soggetta a previa sottoscrizione del foglio di visita. Tale dichiarazione è utile ai fini della conoscibilità dell’immobile grazie all’agenzia immobiliare.
...
