Villa a schiera in Via Molise a Budoni
Villa centrale su unico livello con vista mare e piscina
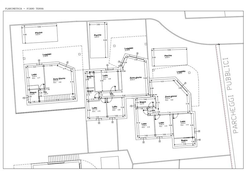
VILLA B
Immersa in un contesto residenziale nuovo, elegante e riservato, a breve distanza dal centro di Budoni e dalle sue incantevoli spiagge, questa villa centrale di nuova costruzione rappresenta la perfetta sintesi tra stile moderno, comfort abitativo e qualità costruttiva.
Disposta interamente su un unico livello, la villa gode di grande luminosità naturale, grazie anche ai velux nei bagni che donano luce zenitale e ariosità agli ambienti interni. Una veranda coperta con vista mare introduce alla zona giorno composta da soggiorno spazioso e cucina separata, mentre la zona notte accoglie tre camere da letto e due bagnifinemente rifiniti.
All’esterno, un curato giardino privato ospita una splendida piscina di 6x3 metri, dotata di copertura calpestabile su binari, ideale per coniugare funzionalità e sicurezza, oltre a un posto auto riservato.
Le finiture interne sono state selezionate con particolare attenzione al design e alla qualità: pavimenti e rivestimenti firmati Marazzi e Ragno, porte del gruppo Garofoli, soglie in granito sardo lavorato. I bagni sono impreziositi da sanitari sospesi, rubinetteria di marca e dettagli eleganti che valorizzano ogni spazio.
Il comfort è garantito da un sistema di climatizzazione canalizzata con pompa di calore, fan coil a parete e termostati indipendenti in ogni stanza. La casa è dotata inoltre di sistema domotico integrato, per il controllo intelligente di luci, carichi elettrici e temperatura.
Completano la dotazione un impianto fotovoltaico da 5,4 kW, predisposto per l’integrazione con batterie di accumulo, e una cassaforte murata per la sicurezza degli ambienti.
In classe energetica A4, questa villa è pensata per offrire il massimo del benessere abitativo, con un occhio attento alla sostenibilità, ai consumi ridotti e al piacere di vivere ogni giorno in una casa moderna, accogliente e funzionale.
Una soluzione ideale per chi cerca una dimora raffinata e indipendente, in un angolo di Sardegna dove la natura incontra la qualità della vita e tutto è a portata di mano.
Dove si trova
Informazioni generali
Accessori
Efficienza energetica
Richiesta informazioni all'agenzia
Richiedi informazioni all'agenzia
