Tenuta-Complesso in Agro Donori a Donori'
Complesso agrituristico campagna Donori
Tenuta Arrideli
perfetta per eco-villaggio o cohousing
Nella campagna di Donori, a 2 km dal paese, vi proponiamo un bel complesso agricolo-turistico di recente costruzione, adatto al cohousing, o a un eco-villaggio.
La Tenuta Arrideli si trova nella campagna di Donori, a 2 km dal paese, adagiata in una bella zona panoramica del Parteolla, regione di fiorente attività agricola nel hinterland di Cagliari, in Sardegna.
Questo bel complesso agro-turistico di recente costruzione si estende in un’area di 3,5 ettari, in una zona di magnifica campagna incontaminata a mezz’ora da Cagliari.
La proprietà, completamente recintata, include diversi edifici, alcuni ultimati e altri da costruire.
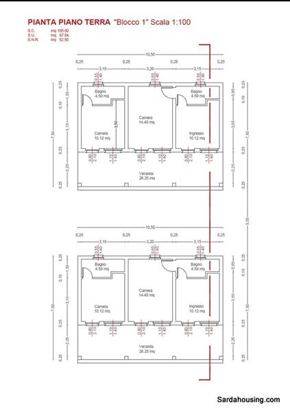
Delle quattro unità previste per gli ospiti, tre unità di 80 mq ciascuna sono già state realizzate e alcune sono suddivise in due unità più piccole. Un alloggio resta da costruire.
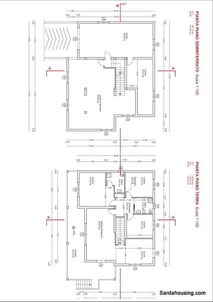
Della casa padronale prevista in progetto, invece, è stato realizzato il seminterrato con garage, di 170 mq, mentre il piano terra residenziale, di 135 mq, resta da costruire.
Il progetto prevede anche la costruzione di una stalla di 250 mq.
Nella tenuta sono piantati un giovane oliveto, un vigneto e alberi da frutta.
Il pozzo artesiano fornisce acqua in grande abbondanza, ed è anche presente un laghetto artificiale per l’irrigazione.
E’ possibile, infine, acquistare un oliveto vicino di 9000 mq.
Classe energetica G. IPE > 175 Kwh/mq annuo - dati in attesa di certificazione.
Prezzo: euro 440.000.
info@sardahousing.com - www.sardahousing.com
https://www.sardahousing.com/real-estate/vendita-agriturismo-donori-cagliari-arrideli/
-------------------
https://www.sardahousing.com/donori-agricoltura/
Donori info
A trenta chilometri a nord di Cagliari, nel sud della Sardegna, Donori è un piccolo centro caratterizzato dall’eccellenza dei prodotti agroalimentari e dalla profonda devozione.
Donori si adagia tra due corsi d’acqua sul pendio del monte Zurru. E’ un paese di poco più di duemila abitanti nella regione storica del Parteolla, ai confini col Campidano meridionale.
Un tempo fu centro minerario, come attestano i resti dell’ex miniera Monteponi; oggi, grazie alla fertilità del circostante territorio collinare e alla ricchezza d’acqua, Donori ha una forte vocazione agricola e pastorale: cereali, olivi e viti, tra le quali cannonau e bovale, e una rinomata produzione casearia.
L’ex monte granatico nel centro del paese, oggi destinato a mostre ed esposizioni testimonia l’antichità della tradizione agropastorale.
Abitato sin dall’età del Bronzo, infatti, come testimoniano in particolare i nuraghi Sa Domu e s’Orcu mannu e Guntuxius, il territorio presenta tracce anche del dominio romano: resti di necropoli e di una villa. Il villaggio di Donori fu invece fondato nel Medioevo, sotto il giudicato di Cagliari, abbandonato nel corso del XV secolo, e ripopolato a partire dal 1619.
Il centro storico è caratterizzato dalla b
Dove si trova
Informazioni generali
Accessori
Efficienza energetica
Richiesta informazioni all'agenzia
Richiedi informazioni all'agenzia
