Capannone industriale abitabile a Colonnella
5362 m2
4 vani
Tratt. riservata
Capannone / Fondo a Colonnella
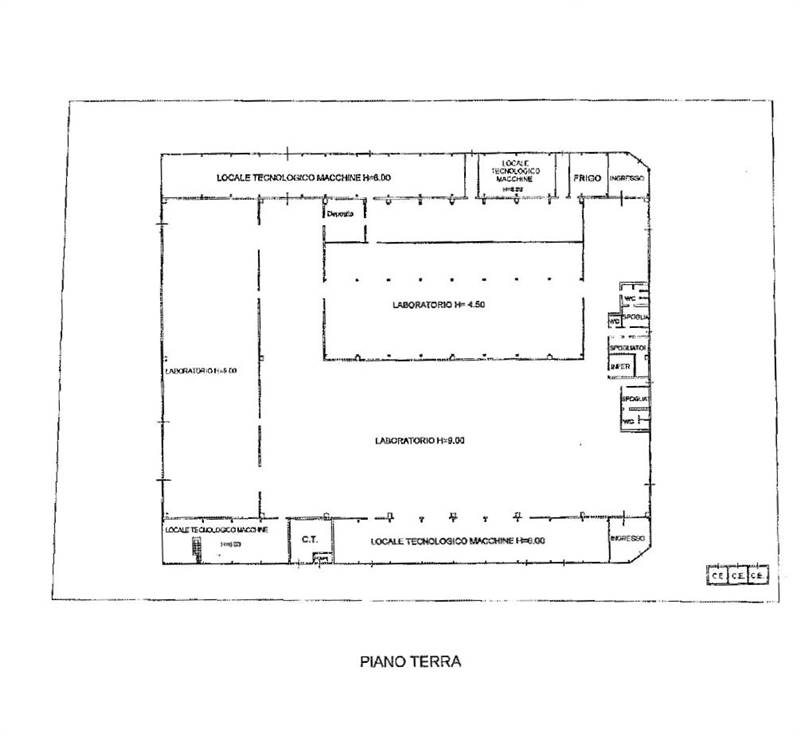
Colonnella (TE) - in contrada Vallecupa, a pochi km dal casello dell’autostrada A14 di San Benedetto del Tronto, capannone di mq 4916 coperti con piazzale di mq 4464, ultimato nel 2006 con struttura prefabbricata a travi e pilastri in cemento armato. L’edificio si sviluppa su un unico livello ed è costituito da diversi ambienti destinati a laboratorio, locali tecnologici ed un blocco servizi con spogliatoi e wc. Le altezze interne variano da m. 9 a m. 6,5. Canone di locazione da concordare. IMMOBILE ANCHE IN VENDITA AL PREZZO DI EURO 1.750.00,00. Rif. 6313 DiLeoImmobiliare...
Dove si trova
Informazioni generali
6313
5362 m2
4 locali
Trattativa
Affitto
Capannone industriale
Colonnella
Medio Signorile
2006
23/12/2025
Accessori
Terra, senza ascensore
Abitabile
si
Efficienza energetica
F
F
207 kwh/m3 anno
Planimetria
Richiesta informazioni all'agenzia
Richiedi informazioni all'agenzia
Di Leo Immobiliare
via Pasubio 10 piano 2°
63074
San Benedetto del Tronto
(AP)
P.IVA: 01941740449
