Albergo da ristrutturare a Tortoreto
Country House a Tortoreto
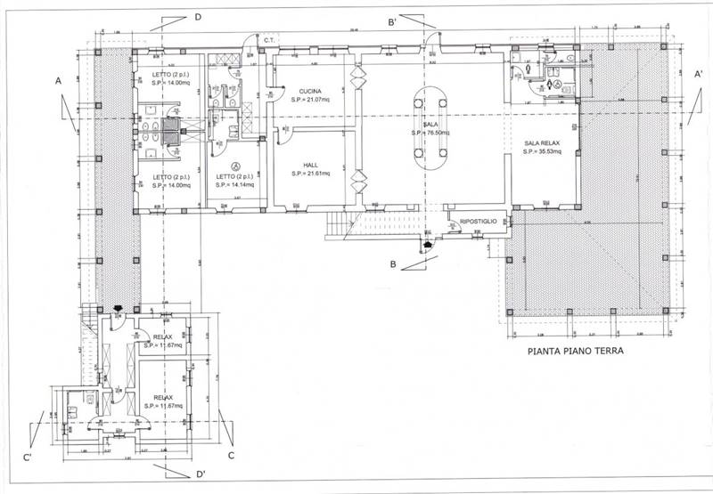
TORTORETO – Con meravigliosa vista panoramica che spazia dal mare Adriatico fino ai monti dell'Appennino Abruzzese, antica residenza di campagna in corso di ristrutturazione con progetto di ampliamento di un fabbricato rurale a Country House, con una superficie edificabile approvata di 560 mq coperti oltre mq 150 di portici e una corte privata di circa mq 2.300 mq. La superficie è distribuita su due livelli e ha due corpi collegati tra loro. Al piano terra, nel corpo principale, sono previste una hall, una cucina, una sala ristorante, una sala per il relax, tre servizi igienici per il personale e tre camere matrimoniali, tutte con bagno privato. Nella dependance, collegata al corpo principale attraverso un portico, sono previste due sale di lettura ed un bagno. Completa il piano un portico realizzato sulle pareti ad est e sud dell’edificio per il ristorante. Al piano primo accessibile con scala esterna rettilinea è previsto un disimpegno, sette camere da letto tutte con bagno privato distribuite lungo un corridoio centrale e un ripostiglio. Completano il piano due grandi terrazzi posti ad est e ad ovest. La proprietà è completamente recintata. Nella ristrutturazione è stata conservata l’architettura dell’edificio riproponendo il tetto a padiglione con due falde inclinate sovrapposte; la struttura dei tetti è costituita da un’orditura principale e secondaria in legno. Dove è stato possibile, sono stati mantenuti i mattoni a faccia vista; il ristorante presenta uno spazio molto ampio di elevato pregio architettonico che è stato mantenuto con attenzione ai dettagli già esistenti degli elementi antichi. Le lavorazioni non ultimate sono: impianti elettrici, elettronici e idro-termo sanitari, massetti e coibentazioni, pavimentazioni interne ed esterne, intonaci, tinteggiature, controsoffitti e altre opere di finitura quali telai, porte, infissi etc. Possibilità, previa verifica con gli uffici territoriali competenti, di realizzare una piscina. Il prezzo di vendita si intende allo stato attuale. Rif. 6819 DILEOIMMOBILIARE
...
Dove si trova
Informazioni generali
Accessori
Efficienza energetica
Richiesta informazioni all'agenzia
Richiedi informazioni all'agenzia
