Capannone industriale abitabile a Colonnella
5362 m2
4 vani
€ 1.332.000
Capannone / Fondo a Colonnella
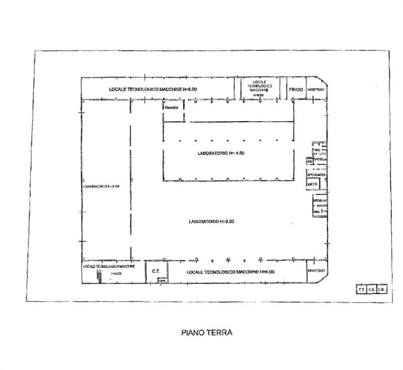
Colonnella (TE) - in contrada Vallecupa, a pochi km dal casello dell’autostrada A14 di San Benedetto del Tronto, capannone di mq 4916 coperti con piazzale di mq 4464, ultimato nel 2006 con struttura prefabbricata a travi e pilastri in cemento armato. L’edificio si sviluppa su un unico livello ed è costituito da diversi ambienti destinati a laboratorio, locali tecnologici ed un blocco servizi con spogliatoi e wc. Le altezze interne variano da m. 9 a m. 6,5. Possibile applicazione del reverse charge IVA. Rif. 5430 DiLeoImmobiliare...
Dove si trova
Informazioni generali
5430
5362 m2
4 locali
€ 1.332.000
Vendita
Capannone industriale
Colonnella
Medio Signorile
2006
23/12/2025
Accessori
Terra, senza ascensore
Abitabile
si
Efficienza energetica
F
F
207 kwh/m3 anno
Planimetria
Richiesta informazioni all'agenzia
Richiedi informazioni all'agenzia
Di Leo Immobiliare
via Pasubio 10 piano 2°
63074
San Benedetto del Tronto
(AP)
P.IVA: 01941740449
