Terreno edificabile abitabile a Colonnella
8494 m2
1 vano
€ 200.000
Terreno edificabile a Colonnella
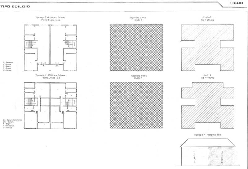
COLONNELLA - con vista mare, in posizione tranquilla immersa nel verde ma a poca distanza dal centro abitato e dalla spiaggia, LOTTO DI TERRENO edificabile a destinazione abitativa di mq. 8500 circa complessivi con progetto di lottizzazione già studiato. La superficie lorda massima edificale è di mq. 2800 con max 2 piani fuori terra e altezza 7,5 m. Sono stati ipotizzati 6 lotti di varie dimensioni con un costo di opere di urbanizzazione stimato per circa 90mila euro. Operazione particolarmente vantaggiosa. Informazioni in ufficio. Rif. 6917 DiLeoImmobiliare...
Dove si trova
Informazioni generali
6917
8494 m2
€ 200.000
Vendita
Terreno edificabile
Colonnella
Medio Signorile
2025
23/12/2025
Planimetrie
Richiesta informazioni all'agenzia
Richiedi informazioni all'agenzia
Di Leo Immobiliare
via Pasubio 10 piano 2°
63074
San Benedetto del Tronto
(AP)
P.IVA: 01941740449
