Trilocale in Via Dei Colli a Colonnella
Appartamento in Vendita di 65 mq a Colonnella
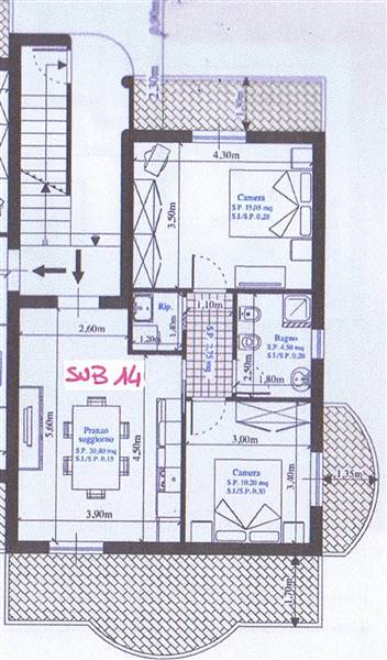
L'Agenzia Re Casa Immobiliare propone in vendita, appartamento di nuova costruzione sito a Colonnella, in zona residenziale ed a 500 metri dai principali servizi cittadini. Appartamento 65 mq, primo piano. Ingresso su ampio soggiorno - pranzo con angolo cottura a vista, due camere da letto di cui una matrimoniale ed una singola, un bagno con doccia ad areazione forzata, piccolo sgabuzzino con allacci, Corte esterna esclusiva di mq 6 e terrazzo abitabile vista mare 19 mq. Esposizione nord - est - sud. Completa la proprietà un garage al piano interrato di 23 mq. Il fabbricato di recente costruzione è realizzato in Classe Energetica D, muratura con intercapedine isolante interna, impiantistica autonoma e non centralizzata, pavimentazione in gres porcellanato, bagni con sanitari sospesi, infissi interni in alluminio con doppio vetro a taglio termico ed isolate acusticamente, tapparelle in pvc ultra leggere, portone di ingresso del tipo blindato. NUOVA COSTRUZIONE..Disponibilità di acquistare garage al piano seminterrato, disponibilità di posto auto scoperti condominiali non assegnati.
