Trilocale abitabile a Martinsicuro
Appartamento a Martinsicuro
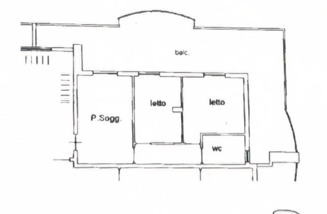
MARTINSICURO - in zona servita a circa 25 metri dal mare, appartamento di circa 60 mq coperti al terzo piano servito da ascensore. E' composto da ingresso su soggiorno con angolo cottura, una camera matrimoniale, una camera singola, un bagno finestrato con doccia ed un terrazzo di circa 70 mq con vista mare. Completa la proprietà un garage al piano interrato di circa 15 mq. Vi è uno spazio verde condominiale recintato. L'immobile si presenta in ottime condizioni, ha infissi in legno con doppio vetro, portone blindato, aria condizionata, impianto di riscaldamento termoautonomo con elementi in alluminio, caldaia a condensazione, tende parasole, angolo lavanderia sul terrazzo. Arredamento incluso nel prezzo. Riferimento agenzia 6910 DiLeoImmobiliare...
Dove si trova
Informazioni generali
Accessori
Efficienza energetica
Planimetrie
Richiesta informazioni all'agenzia
Richiedi informazioni all'agenzia
