Locale commerciale a Torino
vendita Locale Commerciale Torino
Per maggiori informazioni su questo annuncio contattare Alessio al.
Torino - San Salvario - Proponiamo in vendita Attività commerciale con licenza di Tipologia 3, su via principale, in zona ad alta densità abitativa e nelle immediate vicinanze di scuole, aule studio, parco del Valentino e servizi di prima necessità.
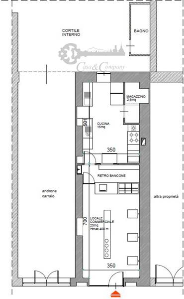
Locale di 40 mq circa, presenta una vetrina su strada ed è così composto: ingresso su sala, cucina di 15 mq con canna fumaria di ultima generazione certificata, magazzino, bagno dipendenti, bagno clientela (uomo/donna) e dehor esterno.
L'immobile è stato oggetto di ristrutturazione nel 2021 che ha riguardato: pavimentazione, impiantistica (elettrica ed idraulica), installazione canna fumaria e climatizzatore con pompa di calore.
Affitto euro 900,00 mensili.
Richiesta euro 39.000, 00.
