Monolocale in zona Centro, Giardini Reali, Repubblica a Torino
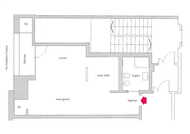
A Torino in zona San Salvario, in Via Madama Cristina 52 angolo Via Morgari e vicino alla Metro, al 5° piano di un moderno ed elegante edificio ristrutturato vendiamo ampio monolocale di 45 mq con vista panoramica. Composizione: piccolo ingresso, ampia stanza con cucina a vista, zona notte e zona giorno, ripostiglio, bagno con cabina doccia, balcone con ripostiglio. Un locale ad uso cantina sullo stesso piano del monolocale completa l'offerta. Caratteristiche: il monolocale si divide facilmente in due zone, notte e giorno; pavimenti in parquet; bagno con areazione forzata, attacco lavatrice e termosifone scalda-salviette; infissi con doppi vetri; riscaldamento e climatizzazione condominiali distribuiti attraverso canalizzazione e lama d’aria a soffitto; videocitofono; dal balcone si vedono le colline. Le spese di condomino comprendono anche riscaldamento e raffrescamento.Proponiamo il rendering di una soluzione di arredo.Possibilità di acquistare un posto auto di 12 mq nell'autorimessa condominiale a € 25.000, 00.San Salvario, il quartiere di Torino dove si trova l'appartamento di Via Madama Cristina 52, è una zona semicentrale e molto verde della città, per la presenza del Parco del Valentino e del fiume Po, e ben servita dalla Metropolitana. Centro di aggregazione commerciale è il mercato quotidiano di piazza Madama Cristina. In zona si trovano le sedi di diverse facoltà scientifiche dell'Università di Torino tra cui Medicina e Biotecnologie, alcune importanti scuole come il Liceo Alfieri, palazzi storici come il Castello del Valentino con la facoltà di Architettura del Politecnico, il Teatro Colosseo e numerosi bar, ristoranti e locali che offrono svariate possibilità di passare il tempo libero.
