Trilocale abitabile a Rivarolo Canavese
120 m2
3 vani
€ 133.000
vendita Appartamento Rivarolo Canavese
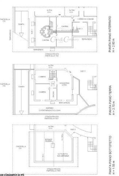
Rivarolo - Via Don Stefano Nida a due passi dal centro ma nello stesso tempo in zona molto tranquilla proponiamo in vendita alloggio al piano terra con giardino privato e ampia taverna. La soluzione è di recente costruzione ed ha il riscaldamento autonomo. L'immobile è composto da ingresso living su zona soggiorno /pranzo con cucina a vista, disimpegno, due camere da letto ed il bagno. Il piano interrato piu' precisamente cantina/taverna, è collegato internamente da una comoda scala. Completa la soluzione il box auto doppio ed il giardino disposto su 3 lati.
Informazioni generali
Piano terra con giar
120 m2
3 locali
€ 133.000
Vendita
Appartamento
Rivarolo Canavese
04/07/2023
Accessori
Autonomo
Abitabile
si
Efficienza energetica
B
B
73,55 kwh/m2 anno
Richiesta informazioni all'agenzia
Richiedi informazioni all'agenzia
Casa & Company S.n.c
Corso Francia 247/B/E
10141
Torino
(TO)
P.IVA: 11285800014
