Trilocale in Via Sant'Anselmo, 19 a Torino
vendita Appartamento Torino
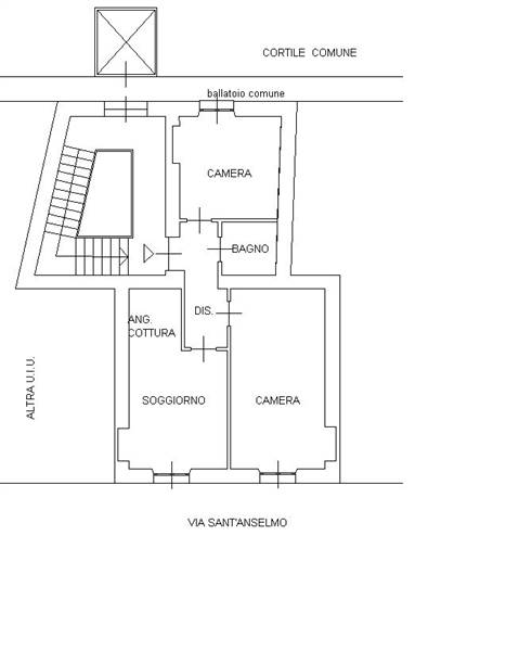
VIA SANT'ANSELMO in palazzo d'epoca nel quale è stato recentemente installato l'ascensore, proponiamo in vendita appartamento all'ultimo piano di 70 mq. circa in ottime condizioni composto da ingresso, 2 camere, tinello, cucinino, bagno, balcone, cantina. L'immobile gode di doppia esposizione. E' possibile lasciare le biciclette nel cortile condominiale e il riscaldamento è autonomo.
Lo stabile è a pochi passi dalla metropolitana e dal parco del Valentino, il quartiere è fornito di tutti i principali servizi, l'appartamento si presta ad essere destinato come prima abitazione o può essere messo a reddito grazie alla vicinanza alle università scientifiche.
Per informazioni telefonare a Gabetti Agenzia Della Rocca 011.836116
Le informazioni contenute nel presente annuncio non costituiscono elemento contrattuale.
Informazioni generali
Accessori
Richiesta informazioni all'agenzia
Richiedi informazioni all'agenzia
